Appartamento in Vendita a Venezia, 315'000€, 120 m²

Locali: 5
Bagni: 2
Camere: 3
Piano: 2°
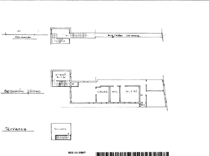
Murano, in posizione strategica e comoda a tutti i principali servizi, proponiamo immobile situato al secondo piano con piacevole vista aperta sul canale. La vicinanza alle fermate dei vaporetti rende gli spostamenti agevoli sia verso Venezia che verso la terraferma, garantendo al contempo la tranquillità tipica dell'isola. L'abitazione si distingue per la luminosità degli ambienti e per gli spazi generosi, che offrono interessanti possibilità di personalizzazione in base alle esigenze del futuro proprietario. L'ingresso conduce alla zona giorno composta da soggiorno e cucina, ben distribuiti e facilmente rimodulabili. La zona notte comprende due camere matrimoniali di ampia metratura, oltre a uno studio ideale come area lavoro o terza stanza. Presenti due bagni e una comoda lavanderia/ripostiglio, dalla quale si accede alla terrazza con suggestiva vista sui tetti circostanti. L'immobile necessita di interventi di ristrutturazione, rappresentando così un'ottima opportunità per chi desidera valorizzare gli spazi e realizzare una soluzione abitativa su misura in un contesto autentico e ben collegato. Rif. 180 Da oltre 60 anni, Gabetti è sinonimo di professionalità e affidabilità nel mercato immobiliare italiano. La nostra sede di Venezia, situata nel centro storico in Cannaregio Strada Nuova 4385, è facilmente raggiungibile e offre un servizio completo di intermediazione immobiliare e consulenza personalizzata. Che si tratti di vendere, acquistare, affittare o investire, i nostri consulenti sono sempre pronti ad accompagnarvi nella scelta dell'immobile ideale, residenziale o commerciale. Contattaci al 041 5207123 per scoprire le migliori opportunità immobiliari nel mercato veneziano.

Condizioni economiche

Contratto: Vendita
Prezzo: 315'000€
Arredato: No
Spese condominiali: 10€
Libero: Si

Informazioni principali

Tipologia: Appartamento
Città: Venezia
Superficie: 120 m²
N° locali: 5
N° bagni: 2
N° Camere: 3
Piano:
Cucina: Abitabile

Efficenza energetica

Classe energetica: 2015-G
Ipe: 175.00 kwm2
Anno di costruzione: 1000
Riscaldamento: autonomo

Dati inserzione

ID Offrocasa.com: 10985699
Data inserimento: 20/02/2026
Rif. Agenzia: 180/2026VRG
Rif. Agenzia 180/2026VRG

Gabetti

Dorsoduro Campo Santa Margherita 29/65 - Venezia
041/2411548
Richiedi Info dal form:
Accetto l'Informativa Privacy


Condividi

Gabetti

Dorsoduro Campo Santa Margherita 29/65 - Venezia

Appartamento in Vendita a Venezia, 315'000€, 120 m²

Chiama
Contatta