Quadrilocale in Vendita a Vigodarzere, 350'000€, 198 m², con Box

Locali: 4
Bagni: 2
Camere: 3
Piano: Terra
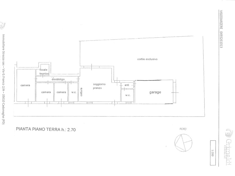
VIGODARZERE CENTRO. Proponiamo in vendita esclusiva, splendido appartamento sviluppato in unico livello, posto al piano terra in classe A4 per il risparmio energetico, con ingressi carraio e pedonale completamente autonomi. Questa residenza esposta su tre lati (est- sud - ovest) offre spazi generosi e ben distribuiti, ideale per chi cerca un ambiente accogliente e funzionale. L'appartamento vanta un soggiorno con cucina a vista di ben 50 mq con vetrata scorrevole, due matrimoniali da 14,6 e 22,8 mq, una camera da letto singola da 9,5 mq con doppi servizi finestrati e ripostiglio/lavanderia. La soluzione è impreziosita da un'area scoperta di 300 mq con funzionale pompeiana coperta, offrendo un'oasi verde dove rilassarsi e godersi momenti di tranquillità. L'unità si completa con garage da 22 mq collegato e due posti auto esterni di proprietà. La vicinanza ai principali mezzi pubblici come autobus, tram, treno e ai tutti i principali servizi di prima necessità, rende questo appartamento un'opportunità perfetta per chi desidera vivere in un ambiente raffinato, confortevole e ben collegato al centro di Padova. Classe energetica A4 IPE 39,42 Compreso nel prezzo di vendita: Cucina, bagni, condizionatori e pompeiana - Zona giorno gress porcellanato - Zona notte: Pavimenti in rovere spazzolato - Fotovoltaico 3 KW - Riscaldamento a pavimento in pompa di calore - Impianto elettrico in domotica per controllo carichi, tapparelle, videocitofono e portoncino con chiave e spioncino elettrico collegato - Struttura in Isospam (legno/cemento) Grimaldi immobiliare via G. Franco 2/ a - 35010 Mejaniga di Cadoneghe (PD) Fisso: 049 8873656 Cadoneghe@grimaldifranchising.it https://grimaldi.casa/ Chiamaci subito per maggiori informazioni!

Condizioni economiche

Contratto: Vendita
Prezzo: 350'000€
Spese condominiali: 15€

Informazioni principali

Tipologia: Quadrilocale
Città: Vigodarzere
Superficie: 198 m²
N° locali: 4
N° bagni: 2
N° Camere: 3
Piano: Terra
Box: Si
Cucina: Abitabile
Giardino: Privato

Efficenza energetica

Classe energetica: 2015-A4
Ipe: 39.42 kwm2
Climatizzatore: Si
Anno di costruzione: 2019
Riscaldamento: autonomo

Caratteristiche

Ascensore: Si
Videocitofono: Si

Dati inserzione

ID Offrocasa.com: 10985692
Data inserimento: 20/02/2026
Rif. Agenzia: 0493261013VRG
Rif. Agenzia 0493261013VRG

Grimaldi Immobiliare

galleria Porte Contarine 2 - Padova
049/663033
Richiedi Info dal form:
Accetto l'Informativa Privacy


Condividi

Grimaldi Immobiliare

galleria Porte Contarine 2 - Padova

Quadrilocale in Vendita a Vigodarzere, 350'000€, 198 m², con Box

Chiama
Contatta