Trilocale in Vendita a Napoli, 245'000€, 85 m²

Locali: 3
Bagni: 1
Piano: 2°
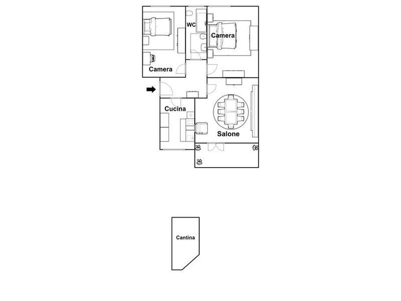
Luminoso appartamento in parco con posto auto e cantinola Se cerchi una casa in una zona strategica e in forte crescita, con spazi ben distribuiti e la possibilità di personalizzarli a tuo piacimento, questo appartamento è la scelta giusta per te! Situato in Via Acquaviva, a pochi passi dal collegamento tra Piazza Poderico e Piazza Nazionale, questo immobile si trova in un'area che negli ultimi anni ha vissuto una forte rivalutazione urbana, diventando sempre più ricercata per la sua posizione centrale e i numerosi servizi disponibili. Un appartamento con ottime potenzialità Posto al secondo piano di un parco residenziale, l'appartamento offre una metratura equilibrata e ben sfruttabile con doppia esposizione, interna sul verde del parco ed esterna su Via Ferrante Loffredo angolo Via Luigi La Vista L'ingresso si apre su un ampio disimpegno, che conduce ai vari ambienti della casa distribuiti in soggiorno, 2 camere da letto, cucina e servizio. La struttura interna è composta da tramezzi, permettendo di ridisegnare gli spazi a seconda delle proprie esigenze. Un'opportunità perfetta per chi desidera personalizzare l'immobile con una ristrutturazione su misura. Comfort e vantaggi ?? Posto auto condominiale assegnato ?? Cantina di proprietà di circa 6 mq ?? Riscaldamento autonomo ?? Altezza soffitti: 3 metri ?? Spese condominiali contenute (35?/mese) Un quartiere in continua evoluzione L'area di Via Acquaviva rappresenta oggi un ottimo investimento: ben collegata al centro, vicina a Piazza Poderico e Piazza Nazionale, zone che negli ultimi anni hanno visto una rivalutazione significativa grazie a nuovi servizi, attività commerciali e migliorie urbanistiche. La vicinanza ai trasporti pubblici, ai negozi e alle scuole rende questa zona particolarmente comoda per chi cerca un'abitazione in una posizione centrale ma vivibile, con la tranquillità offerta da un parco residenziale. Inoltre abbiamo stretto una collaborazione con uno studio di architettura al fine di concepire un progetto di ristrutturazione. Di seguito, presentiamo alcune immagini che illustrano le significative trasformazioni che questo progetto porterà all'appartamento, trasformandolo in spazi eleganti e funzionali. Desideriamo offrirti l'opportunità di incontrare direttamente gli architetti responsabili per personalizzare l'appartamento secondo i tuoi desideri. Nei nostri uffici è disponibile un preventivo dettagliato di spesa per la ristrutturazione. Inoltre, saremo lieti di ospitare i potenziali acquirenti per discutere il progetto con gli architetti, rispondere a tutte le tue domande e valutare insieme le migliori soluzioni per te. Alcune delle foto presenti in questo annuncio sono state elaborate in chiave home staging per aiutarti a immaginare il pieno potenziale di questa proprietà. Questi interventi visivi sono pensati per mostrarti come l'appartamento può essere arredato e decorato per valorizzare Contattaci subito per maggiori informazioni o per prenotare una visita!

Condizioni economiche

Contratto: Vendita
Prezzo: 245'000€
Spese condominiali: 35€

Informazioni principali

Tipologia: Trilocale
Città: Napoli
Superficie: 85 m²
N° locali: 3
N° bagni: 1
Piano:
Posto auto: Si
Cucina: Abitabile

Efficenza energetica

Classe energetica: 2015-G
Ipe: 176.00 kwm2
Anno di costruzione: 1960
Riscaldamento: autonomo

Caratteristiche

Cantina: Si

Dati inserzione

ID Offrocasa.com: 10983689
Data inserimento: 18/02/2026
Rif. Agenzia: Cod. rif 3224958VRG
Rif. Agenzia Cod. rif 3224958VRG

Grimaldi Immobiliare

Via Cilea 143 - Napoli
081/5601333
Richiedi Info dal form:
Accetto l'Informativa Privacy


Condividi

Grimaldi Immobiliare

Via Cilea 143 - Napoli

Trilocale in Vendita a Napoli, 245'000€, 85 m²

Chiama
Contatta