Quadrilocale in Vendita a Bari, 275'000€, 120 m²

Locali: 4
Bagni: 2
Camere: 2
Piano: 3°
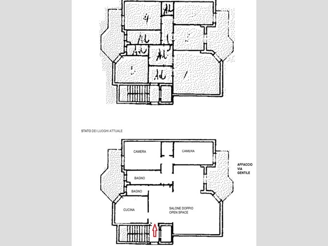
JAPIGIA - VIA GENTILE 55 D ZONA NUOVA SEDE REGIONE PUGLIA - AMPIO 4 VANI VISTA PANORAMICA CANTINA E P.AUTO L'abitazione è posta al terzo piano intermedio, si sviluppa in modo regolare, con ingresso, salone doppio open space, cucina abitabile, due camere da letto, bagno, doppio servizio e ripostiglio. Dispone di due comodi balconi, doppia esposizione, parquet e una vista piacevole sulla Via L'immobile necessita di ammodernamento su impianti e infissi. Il riscaldamento è autonomo e le spese condominiali ammontano a circa 80,00 mensili. Sono stati deliberati lavori di manutenzione straordinaria per la facciata esterna, a carico della parte venditrice. Sempre a carico dei Venditori, è stata presentata istanza al Comune di Bari per la rimozione dei vincoli sul prezzo di cessione. Completa la proprietà una cantina di pertinenza ed un posto auto in area condominiale. Per ulteriori info o visite, non esitate a contattarci ! Gabetti da oltre 70 anni generiamo felicita'. ALTRE INFORMAZIONI: APE IN FASE DI OTTENIMENTO PREZZO RICHIESTO: EURO 275.000,00 PER CONTATTI: GABETTI FRANCHISING AGENCY AGENZIA JAPIGIA VIA MAGNA GRECIA N. 65 TEL. /FAX 080.202. 22.85 - 392.10.25.621 DARIO LASORELLA (RESP. AGENZIA) WWW.DARIOLASORELLA.IT

Condizioni economiche

Contratto: Vendita
Prezzo: 275'000€
Spese condominiali: 80€
Libero: Si

Informazioni principali

Tipologia: Quadrilocale
Città: Bari
Superficie: 120 m²
N° locali: 4
N° bagni: 2
N° Camere: 2
Piano:
Posto auto: Si
Cucina: Abitabile
Giardino: Comune

Efficenza energetica

Classe energetica:
Ipe: 0.00 kwm2
Anno di costruzione: 1980
Riscaldamento: autonomo

Caratteristiche

Cantina: Si
Ascensore: Si

Dati inserzione

ID Offrocasa.com: 10983589
Data inserimento: 18/02/2026
Rif. Agenzia: Cod. rif 3295261VRG
Rif. Agenzia Cod. rif 3295261VRG

Gabetti

viale Magna Grecia 65 - Bari
080/2022285
Richiedi Info dal form:
Accetto l'Informativa Privacy


Condividi

Gabetti

viale Magna Grecia 65 - Bari

Quadrilocale in Vendita a Bari, 275'000€, 120 m²

Chiama
Contatta