Monolocale in Vendita a La Spezia, zona La Pianta, 50'000€, 26 m²

Locali: 1
Bagni: 1
Camere: 1
Piano: 0
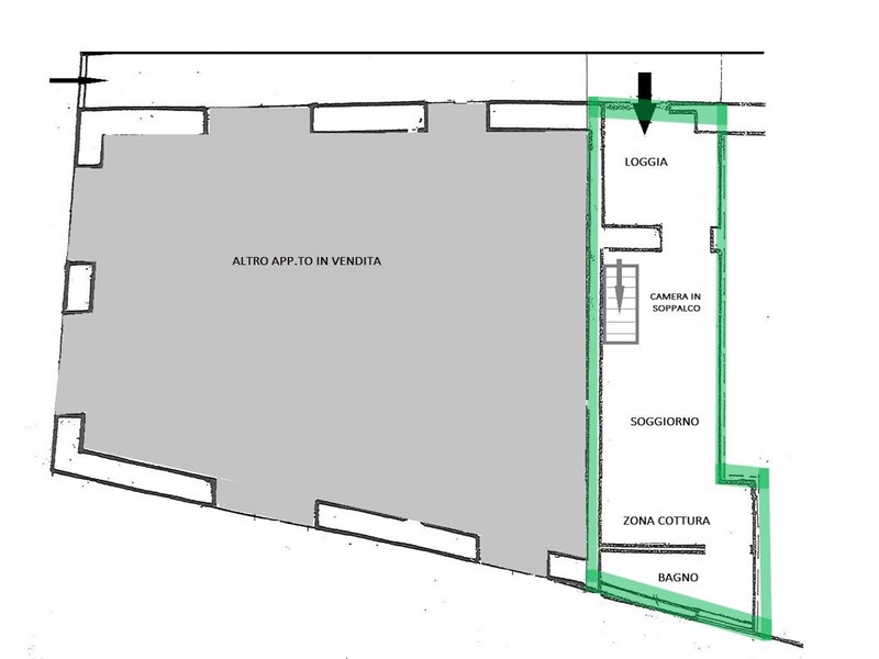
GIANNECCHINI IMMOBILIARE VENDE Nel quartiere della PIANTA in posizione tranquilla e defilata dal traffico in piccolo condominio MONOLOCALE posto al piano terra, costituito da loggia di ingresso, zona giorno con cucina a vista, servizio igienico e camera in soppalco. Dotato di climatizzatore, minime spese condominiali. Abitabile subito con piccoli interventi di personalizzazione. Possibilità di acquisto di altro appartamento adiacente di tre vani. Ideale uso investimento Classe energetica G

Condizioni economiche

Contratto: Vendita
Prezzo: 50'000€
Libero: si

Informazioni principali

Tipologia: Monolocale
Città: La Spezia
Zona: La Pianta
Superficie: 26 m²
N° locali: 1
N° bagni: 1
N° Camere: 1
Piano: 0
N° balconi: 1
Cucina: a vista

Efficenza energetica

Classe energetica: G
Ipe: -
Climatizzatore: si

Dati inserzione

ID Offrocasa.com: 10982988
Data inserimento: 17/02/2026
Rif. Agenzia: 1504
Rif. Agenzia 1504

GIANNECCHINI Immobiliare

Via Vittorio Veneto 267 Piazza G. Garibaldi 18 - La Spezia
340.8820753
Richiedi Info dal form:
Accetto l'Informativa Privacy


Condividi

GIANNECCHINI Immobiliare

Via Vittorio Veneto 267 Piazza G. Garibaldi 18 - La Spezia

Monolocale in Vendita a La Spezia, zona La Pianta, 50'000€, 26 m²

Chiama
Contatta