Quadrilocale in Vendita a Modica, zona SORDA QUARTIERE, 310'000€, 127 m², con Box

Locali: 4
Camere: 3
Piano: 3
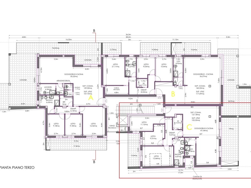
In zona centrale e servita di Modica Sorda, proponiamo in vendita appartamenti di nuova costruzione in uno stabile residenziale che unisce design contemporaneo, tecnologie di ultima generazione ed elevata efficienza energetica. L’appartamento proposto è situato al terzo piano; è composto da ampio e luminoso living con soggiorno/cucina, tre camere da letto, cabina armadio, bagno, doppio servizio/lavanderia e ripostiglio. Completano la proprietà un grande terrazzo a livello di circa 35 mq ed altri tre comodissimi balconi molto ampi. L’edificio, realizzato in classe energetica A++++, ospita appartamenti di diverse metrature tutti dotati di ampie verande o balconi, ideali per vivere gli spazi esterni in totale privacy. Inoltre, grazie alle nuove tecnologie garantisce massimo comfort e consumi ridotti grazie a: - Riscaldamento a pavimento radiante con pompe di calore aria-acqua; - Produzione di acqua calda sanitaria con pompe di calore e boiler in acciaio inox da 200 litri; - Impianto fotovoltaico indipendente da 3 kW per ogni appartamento; - Isolamento termo-acustico di ultima generazione con sistema a secco (cartongesso e lana minerale); - Infissi in PVC ad alte prestazioni con chiusure oscuranti in PVC dotati di motorizzazione elettrico; - Predisposizione domotica; - Predisposizione climatizzazione estiva. Disponibili appartamenti di diverse metrature, tutti dotati di ampie verande o balconi e box auto riservato di circa 15 mq, con possibilità di avere metrature più grandi pagando la differenza. Una soluzione moderna, sostenibile e destinata a mantenere nel tempo il proprio valore, in una zona centrale e perfettamente servita. Consegna prevista fine 2027. L’immobile può beneficiare di detrazione fiscale fino a € 48.000 in 10 anni, secondo le condizioni e i requisiti previsti dalla normativa vigente.

Condizioni economiche

Contratto: Vendita
Prezzo: 310'000€
Arredato: No

Informazioni principali

Tipologia: Quadrilocale
Città: Modica
Zona: SORDA QUARTIERE
Vicinanze: Centrale
Superficie: 127 m²
N° locali: 4
N° Camere: 3
Piano: 3
Box: Si
Cucina: cucina / soggiorno

Efficenza energetica

Classe energetica: A4
Anno di costruzione: 2027
Condizioni stabile: In costruzione
Riscaldamento: Autonomo

Caratteristiche

Ascensore: Si

Dati inserzione

ID Offrocasa.com: 10982961
Data inserimento: 17/02/2026
Rif. Agenzia: 11693-3-C
Rif. Agenzia 11693-3-C

Sud Italia Immobiliare 1

Via fosso Tantillo s.n. - Modica (RG)
0932.764466
Richiedi Info dal form:
Accetto l'Informativa Privacy


Condividi

Sud Italia Immobiliare 1

Via fosso Tantillo s.n. - Modica (RG)

Quadrilocale in Vendita a Modica, zona SORDA QUARTIERE, 310'000€, 127 m², con Box

Chiama
Contatta