Appartamento in Vendita a Mascalucia, 160'000€, 140 m²

Locali: 5
Bagni: 2
Piano: 1°
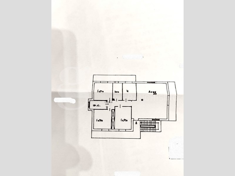
Mascalucia alta verso Nicolosi, Via Mompilieri (vicino il Santuario Madonna della Sciara), Proponiamo in vendita un Appartamento in villa con ingresso indipendente su 500mq di spazio esterno ove è possibile parcheggiare sino a 3/4 auto. L'appartanvilla è posta al primo piano con una superficie di 140 mq, questa proprietà offre ampi spazi luminosi e ben distribuiti, ideali per una famiglia numerosa o per chi desidera vivere con comfort e stile. La zona giorno è composta da un ingresso su un ampio salone, una cucina abitabile arredata ed un servizio, mentre la zona notte dispone di tre camere da letto spaziose e un ulteriore servizio. L'immobile è completamente ristrutturato, sia l'impianto elettrico che idrico dei bagni e della cucina, sono stati sostituiti gli infissi, le tapparelle, le porte interne e la porta d'ingresso blindata. La zona non è servita da gas metano e per questo sono stati installati 5 climatizzatori ad inverter. Il sottotetto è di proprietà ed ha un'altezza al colmo di 3,20 mt. ed è collegato all'appartanvilla da una botola. Tripla esposizione Vista mare/Etna. Questa proprietà rappresenta un'ottima soluzione abitativa per chi cerca comfort, tranquillità e comodità.

Condizioni economiche

Contratto: Vendita
Prezzo: 160'000€
Arredato: No
Libero: Si

Informazioni principali

Tipologia: Appartamento
Città: Mascalucia
Superficie: 140 m²
N° locali: 5
N° bagni: 2
Piano:

Efficenza energetica

Classe energetica:
Ipe: 0.00 kwm2
Anno di costruzione: 0

Dati inserzione

ID Offrocasa.com: 10982777
Data inserimento: 17/02/2026
Rif. Agenzia: Cod. rif 3295173VRG
Rif. Agenzia Cod. rif 3295173VRG

Gabetti

Corso Delle Province, 115 ang. Via G. D'Annunzio - Catania
095/7116870
Richiedi Info dal form:
Accetto l'Informativa Privacy


Condividi

Gabetti

Corso Delle Province, 115 ang. Via G. D'Annunzio - Catania

Appartamento in Vendita a Mascalucia, 160'000€, 140 m²

Chiama
Contatta