Loft in Vendita a Varese, 135'000€, 150 m²

Locali: 3
Bagni: 2
Camere: 2
Piano: Terra
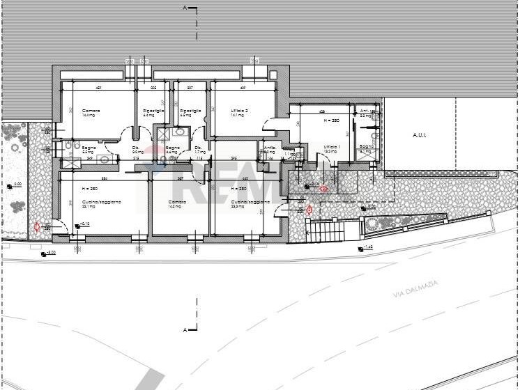
VARESE - ZONA BIUMO - VENDESI AMPIO LOFT / LOCALE OPEN SPACE Nel cuore della città di Varese, zona Biumo, in posizione strategica e di forte visibilità, proponiamo in vendita un immobile INTERAMENTE DA RISTRUTTURARE dal grande valore storico e commerciale. Per oltre 30 anni è stato uno dei pub/trattoria più conosciuti e frequentati della zona, autentico punto di riferimento per intere generazioni. Un luogo che ha segnato la storia della città e che oggi si presenta come una straordinaria opportunità di investimento. L’immobile, caratterizzato da ampi spazi interni e da una distribuzione versatile, dovrà essere oggetto di completa ristrutturazione con l’intento di rivoluzionarne gli ambienti e valorizzarne al massimo le potenzialità. Attualmente accatastato in categoria F/4 (unità in corso di definizione), offre massima flessibilità progettuale. Un grande vantaggio è la proroga per l'inizio dei lavori valevole fino a ottobre 2028 con un progetto già approvato per la creazione di 2 bilocali, un ufficio e posti auto! Le possibilità di sviluppo sono molteplici: - Ripristino di un’attività di ristorazione/pub, sfruttando anche la splendida e spaziosa terrazza, elemento di grande valore aggiunto. - Realizzazione di più unità abitative da rivendere o mettere a reddito, grazie agli ampi volumi e alla posizione perfetta. Ideale per chi lavora in città data la vicinanza ai mezzi di trasporto pubblici. - Progetto misto residenziale/commerciale per un investimento ad alto potenziale. - Creazione di uffici e/o studi medici o professionali Soluzione ideale anche per imprenditori del settore food & beverage, investitori o sviluppatori immobiliari alla ricerca di un immobile iconico con forte identità e importanti prospettive di valorizzazione. Un’opportunità rara per chi desidera dare nuova vita a uno spazio storico, trasformandolo in un progetto di successo. Per maggiori informazioni e per valutare insieme le possibilità di sviluppo, contattaci!

Condizioni economiche

Contratto: Vendita
Prezzo: 135'000€
Libero: Si

Informazioni principali

Tipologia: Loft
Città: Varese
Superficie: 150 m²
N° locali: 3
N° bagni: 2
N° Camere: 2
Piano: Terra
Giardino: Privato

Efficenza energetica

Classe energetica: D
Ipe: 552,08 kwh_m2
Condizioni stabile: Da restaurare

Dati inserzione

ID Offrocasa.com: 10981738
Data inserimento: 15/02/2026
Rif. Agenzia: 21761003-3668
Rif. Agenzia 21761003-3668

RE/MAX Centro Immobiliare

Via Piave, 1 - Varese
03321808906
Richiedi Info dal form:
Accetto l'Informativa Privacy


Condividi

RE/MAX Centro Immobiliare

Via Piave, 1 - Varese

Loft in Vendita a Varese, 135'000€, 150 m²

Chiama
Contatta