Trilocale in Vendita a Modica, zona SORDA QUARTIERE, 190'000€, 75 m², con Box

Locali: 3
Camere: 2
Piano: t
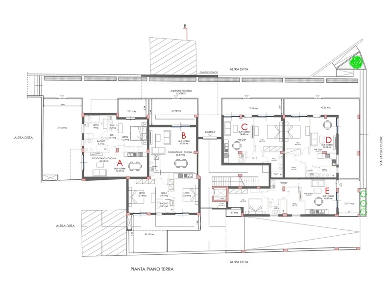
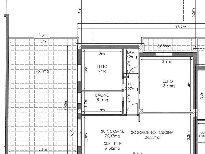
In zona centrale e servita di Modica Sorda, proponiamo in vendita appartamenti di nuova costruzione in uno stabile residenziale che unisce design contemporaneo, tecnologie di ultima generazione ed elevata efficienza energetica. L’appartamento proposto è situato al piano terra e gode di ingresso indipendente; è composto da un comodo e luminoso living con soggiorno/cucina, due camere da letto, bagno e doppio servizio/lavanderia. Completa la proprietà una spaziosa veranda di circa 45 mq, ideale per momenti di relax o per trascorrere piacevoli serate all’aperto. L’edificio, realizzato in classe energetica A++++, ospita appartamenti di diverse metrature tutti dotati di ampie verande o balconi, ideali per vivere gli spazi esterni in totale privacy. Inoltre, grazie alle nuove tecnologie garantisce massimo comfort e consumi ridotti grazie a: - Riscaldamento a pavimento radiante con pompe di calore aria-acqua; - Produzione di acqua calda sanitaria con pompe di calore e boiler in acciaio inox da 200 litri; - Impianto fotovoltaico indipendente da 3 kW per ogni appartamento; - Isolamento termo-acustico di ultima generazione con sistema a secco (cartongesso e lana minerale); - Infissi in PVC ad alte prestazioni con chiusure oscuranti in PVC dotati di motorizzazione elettrico; - Predisposizione domotica; - Predisposizione climatizzazione estiva. Disponibili appartamenti di diverse metrature, tutti dotati di ampie verande o balconi e box auto riservato di circa 15 mq, con possibilità di avere metrature più grandi pagando la differenza. Una soluzione moderna, sostenibile e destinata a mantenere nel tempo il proprio valore, in una zona centrale e perfettamente servita. Consegna prevista fine 2027. L’immobile può beneficiare di detrazione fiscale fino a € 48.000 in 10 anni, secondo le condizioni e i requisiti previsti dalla normativa vigente.

Condizioni economiche

Contratto: Vendita
Prezzo: 190'000€
Arredato: No

Informazioni principali

Tipologia: Trilocale
Città: Modica
Zona: SORDA QUARTIERE
Vicinanze: Centrale
Superficie: 75 m²
N° locali: 3
N° Camere: 2
Piano: t
Box: Si
Cucina: cucina / soggiorno

Efficenza energetica

Classe energetica: A4
Anno di costruzione: 2027
Condizioni stabile: In costruzione
Riscaldamento: Autonomo

Caratteristiche

Ascensore: Si

Dati inserzione

ID Offrocasa.com: 10980453
Data inserimento: 13/02/2026
Rif. Agenzia: 11693-T-SX
Rif. Agenzia 11693-T-SX

Sud Italia Immobiliare 1

Via fosso Tantillo s.n. - Modica (RG)
0932.764466
Richiedi Info dal form:
Accetto l'Informativa Privacy


Condividi

Sud Italia Immobiliare 1

Via fosso Tantillo s.n. - Modica (RG)

Trilocale in Vendita a Modica, zona SORDA QUARTIERE, 190'000€, 75 m², con Box

Chiama
Contatta