Trilocale in Vendita a Milano, 339'000€, 100 m²

Locali: 3
Bagni: 1
Camere: 2
Piano: 5°
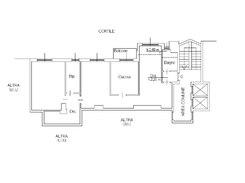
In posizione strategica, a breve distanza dal centro commerciale Portello e ben collegata con i principali servizi e mezzi di trasporto, proponiamo in vendita un ampio trilocale di circa 100 mq, situato al quinto piano di un elegante stabile anni '60, dotato di servizio di portineria per l'intera giornata e doppio ascensore. L'appartamento, in buone condizioni interne, è così composto: ingresso, soggiorno, cucina abitabile, ampia camera matrimoniale, seconda camera, bagno finestrato, un balcone e infine un ampio ripostiglio trasformabile volendo nel secondo bagno. Completa la proprietà una comoda cantina di pertinenza. L'immobile gode di un'esposizione interna che garantisce un'assoluta tranquillità e riservatezza. Il riscaldamento è centralizzato a radiatori e l'unità è già dotata di impianto di aria condizionata. Disponibilità: libero entro sei mesi dalla firma del compromesso.

Condizioni economiche

Contratto: Vendita
Prezzo: 339'000€
Spese condominiali: 250€
Libero: Si

Informazioni principali

Tipologia: Trilocale
Città: Milano
Superficie: 100 m²
N° locali: 3
N° bagni: 1
N° Camere: 2
Piano:
Cucina: Abitabile

Efficenza energetica

Classe energetica: 2015-F
Ipe: 176.07 kwm2
Climatizzatore: Si
Anno di costruzione: 1960
Riscaldamento: centralizzato

Caratteristiche

Cantina: Si
Ascensore: Si

Dati inserzione

ID Offrocasa.com: 10978361
Data inserimento: 11/02/2026
Rif. Agenzia: Cod. rif 3293735VRG
Rif. Agenzia Cod. rif 3293735VRG

Professionecasa

Via Mac Mahon 1 - Milano
02/3492999
Richiedi Info dal form:
Accetto l'Informativa Privacy


Condividi

Professionecasa

Via Mac Mahon 1 - Milano

Trilocale in Vendita a Milano, 339'000€, 100 m²

Chiama
Contatta