Trilocale in Vendita a Peschiera del Garda, 339'000€, 103 m²

Locali: 3
Bagni: 1
Camere: 2
Piano: Terra
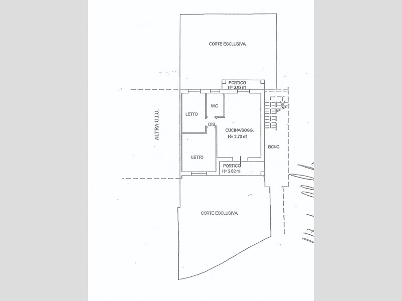
L'appartamento in vendita si trova a Peschiera del Garda, una delle più belle località del Lago di Garda. Attualmente è dato in locazione, quindi rappresenta una grande opportunità di investimento. Le spese condominiali ammontano a 100 euro al mese e sono molto contenute rispetto alla media della zona.L'immobile si trova al piano terra di un edificio costruito nel 2011, quindi è in ottime condizioni e dotato di tutti i comfort moderni. La metratura totale è di 103 metri quadrati, di cui 75 metri quadrati sono calpestabili. Ciò significa che gli spazi sono ben distribuiti e sfruttati al massimo, garantendo una grande vivibilità.All'interno si trovano 3 locali, tra cui una zona giorno spaziosa e luminosa e due camere da letto, ideali per una famiglia o per ospitare amici e parenti. Inoltre, è presente un bagno completo di tutti i sanitari e di una moderna doccia.L'appartamento viene venduto arredato, quindi è già pronto per essere abitato. L'arredamento è moderno , perfetto per chi vuole evitare lo stress di dover arredare da zero la propria casa.L'immobile si trova in un edificio di soli due piani, quindi è molto tranquillo e riservato. Inoltre, grazie alla sua posizione al piano terra, è ideale per chi ha difficoltà di mobilità o vuole evitare le scale.In sintesi, si tratta di un appartamento in vendita a Peschiera del Garda che offre una combinazione perfetta di comodità, modernità e risparmio, ideale sia per chi vuole investire che per chi cerca una casa pronta per essere abitata. Completa la proprietà un garage con cantina . Non perdere l'opportunità di acquistare un immobile in una delle zone più belle e richieste del Lago di Garda.

Condizioni economiche

Contratto: Vendita
Prezzo: 339'000€
Arredato: Arredato
Spese condominiali: 100€
Libero: Si

Informazioni principali

Tipologia: Trilocale
Città: Peschiera del Garda
Superficie: 103 m²
N° locali: 3
N° bagni: 1
N° Camere: 2
Piano: Terra
Box: Singolo
Giardino: Privato

Efficenza energetica

Classe energetica: B
Ipe: 50,00 kwh_m2
Anno di costruzione: 2011
Condizioni stabile: Buono
Riscaldamento: Autonomo

Dati inserzione

ID Offrocasa.com: 10977963
Data inserimento: 11/02/2026
Rif. Agenzia: 242
Rif. Agenzia 242

PHILIA REAL ESTATE

VIA NAPOLEONE 22 - Affi (Verona)
0456260136
Richiedi Info dal form:
Accetto l'Informativa Privacy


Condividi

PHILIA REAL ESTATE

VIA NAPOLEONE 22 - Affi (Verona)

Trilocale in Vendita a Peschiera del Garda, 339'000€, 103 m²

Chiama
Contatta