Trilocale in Vendita a Milano, 495'000€, 100 m²

Locali: 3
Bagni: 2
Camere: 2
Piano: 9
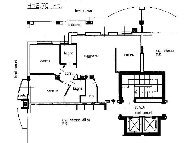
Lo Studio Immobiliare Mc Domus propone in vendita, SPLENDIDO AMPIO 3 LOCALI di circa 100 mq, sito al 9° piano, inserito all’interno di un contesto condominiale di recente costruzione. L'appartamento è così composto: ingresso in disimpegno, ampio soggiorno, cucina abitabile, due camere da letto doppi servizi e ripostiglio. È inoltre presente uno splendido terrazzo al piano, adiacente sia alla zona giorno che alla zona notte, da cui è possibile godere di un gradevole affaccio panoramico. L'immobile gode di un'ottima luminosità grazie alla doppia esposizione. Riscaldamento autonomo, infissi in legno doppi vetri, pavimentazione in parquet e ceramica, impianto di aria condizionata, videocitofono, porta blindata. Completa la soluzione una cantina di pertinenza ed un box ad Euro 25.000. POSSIBILITA’ TRAFORMAZIONE in 4 LOCALI! Lo stabile è dotato di portineria mezza giornata e di un grazioso e curato giardino condominiale, oltre a tutti i requisiti e i comfort di una recente costruzione. Il complesso è ubicato in una posizione strategica, vicino ai principali mezzi pubblici che collegano rapidamente il centro cittadino, ma allo stesso tempo limitrofo al Parco Agricolo Sud, il quale offre ai residenti un'area di svago e benessere. Negozi, scuole, supermercati e servizi non mancano, nei dintorni di un quartiere residenziale ben servito, ricco di verde e servizi commerciali, caratterizzato da forme eleganti e signorili, ideale grazie ai numerosi collegamenti ma anche alla rapidità con cui è possibile raggiungere il centro. La zona, che è oggetto di grande interesse e riqualificazione negli ultimi anni, rende questa soluzione un investimento ideale, grazie alla vicinanza a nuove strutture di spicco, quali Fondazione Prada, la sede di Fastweb, la nuova scuola di lingue ICS Symbiosis, il futuro villaggio Olimpico 2026 e gli ottimi collegamenti con le numerose università milanesi. Raggiungibile tramite la linea 34 che collega Quartiere Fatima con Via Toffetti passando per la linea MM3 di Brenta, la linea 95 che collega Rogoredo (FS e MM3) con Famagosta (MM2) e il tram linea 24 che collega Vigentino con il Duomo, comodissimo per raggiungere il centro in pochi minuti. DEVI VENDERE o AFFITTARE CASA? CONTATTACI PER UNA VALUTAZIONE GRATUITA e SENZA IMPEGNO! Per maggiori informazioni rivolgersi allo: 02.55230171

Condizioni economiche

Contratto: Vendita
Prezzo: 495'000€
Arredato: Non arredato
Spese condominiali: 150€
Libero: Si

Informazioni principali

Tipologia: Trilocale
Città: Milano
Superficie: 100 m²
N° locali: 3
N° bagni: 2
N° Camere: 2
Piano: 9
Box: Singolo
Cucina: Si
Giardino: Comune

Efficenza energetica

Classe energetica: D
Ipe: 130,62 kwh_m2
Anno di costruzione: 2001
Condizioni stabile: Molto buono
Riscaldamento: Autonomo

Caratteristiche

Ascensore: Si

Dati inserzione

ID Offrocasa.com: 10977934
Data inserimento: 11/02/2026
Rif. Agenzia: Pampuri 9 - Trilocale
Rif. Agenzia Pampuri 9 - Trilocale

Mc Domus Srl

via Giuseppe Ripamonti 190 - Milano
0255230171
Richiedi Info dal form:
Accetto l'Informativa Privacy


Condividi

Mc Domus Srl

via Giuseppe Ripamonti 190 - Milano

Trilocale in Vendita a Milano, 495'000€, 100 m²

Chiama
Contatta