Trilocale in Vendita a Cervia, 319'000€, 60 m²

Locali: 3
Camere: 2
Piano: t
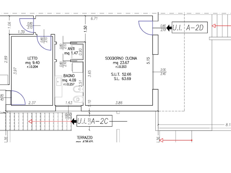
ULTIMO TRILOCALE DISPONIBILE : l'appartamento è situato al piano terra con giardino privato, realizzato in X-LAM con materiali ecosostenibili di alta qualità. Edificio NZEB, in classe energetica A4, con impianto fotovoltaico da 3 kW per la produzione autonoma di energia. L’abitazione è composta da veranda affacciata sul soggiorno con ampia vetrata, zona giorno, bagno con antibagno e due camere da letto, di cui una matrimoniale. Zona tranquilla ma comodissima: spiaggia, pineta di Pinarella, centro e porto di Cervia, saline e stazione ferroviaria sono facilmente raggiungibili in bicicletta. Nelle vicinanze tutti i servizi principali. Possibilità di posto auto. Dotazioni: Costruzione X-LAM, riscaldamento e raffrescamento con pompa di calore canalizzata, infissi doppio vetro, tapparelle in alluminio motorizzate, ampia scelta di finiture. Vendita a corpo e non a misura. VENDITA DIRETTA DAL COSTRUTTORE – NESSUNA MEDIAZIONE

Condizioni economiche

Contratto: Vendita
Prezzo: 319'000€
Arredato: No
Spese condominiali: 10€

Informazioni principali

Tipologia: Trilocale
Città: Cervia
Vicinanze: Vicinanze Mare
Superficie: 60 m²
N° locali: 3
N° Camere: 2
Piano: t
Posto auto: Si
Cucina: Abitabile
Giardino: Si

Efficenza energetica

Classe energetica: A4
Anno di costruzione: 2026
Condizioni stabile: In costruzione
Riscaldamento: Autonomo

Dati inserzione

ID Offrocasa.com: 10976043
Data inserimento: 07/02/2026
Rif. Agenzia: trilo-cervia2
Rif. Agenzia trilo-cervia2

Restage Srl

Via Tagliapietre 8 - Bologna
051 6750342
Richiedi Info dal form:
Accetto l'Informativa Privacy


Condividi

Restage Srl

Via Tagliapietre 8 - Bologna

Trilocale in Vendita a Cervia, 319'000€, 60 m²

Chiama
Contatta