Bilocale in Vendita a Piacenza, 125'000€, 72 m², arredato

Locali: 2
Bagni: 1
Camere: 1
Piano: 1°
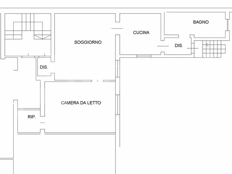
Sito al primo piano in piccolo contesto ristrutturato negli anni 2000, ampio bilocale con giardino interno ad uso esclusivo, corredato da portico ideale per momenti di relax all'aperto. La soluzione, luminosa e ben distribuita, si compone di soggiorno con camino, cucina semiabitabile separata, camera matrimoniale, bagno finestrato completo di vasca e doccia e funzionale ripostiglio. Le finiture prevedono pavimenti in marmo, ceramica e parquet, infissi in legno con doppi vetri, impianto di climatizzazione, porta blindata con doppio ingresso anche dal verde privato. La soluzione si completa di cantina al piano seminterrato e viene proposta parzialmente arredata.

Condizioni economiche

Contratto: Vendita
Prezzo: 125'000€
Arredato: Si
Libero: Si

Informazioni principali

Tipologia: Bilocale
Città: Piacenza
Superficie: 72 m²
N° locali: 2
N° bagni: 1
N° Camere: 1
Piano:
Cucina: Abitabile
Giardino: Privato

Efficenza energetica

Classe energetica:
Ipe: 0.00 kwm2
Climatizzatore: Si
Anno di costruzione: 0
Riscaldamento: autonomo

Caratteristiche

Cantina: Si
Videocitofono: Si

Dati inserzione

ID Offrocasa.com: 10975737
Data inserimento: 07/02/2026
Rif. Agenzia: Cod. rif 3291062VRG
Rif. Agenzia Cod. rif 3291062VRG

Gruppo CPiace Srl

Piazzale Medaglie D'Oro 7 - Piacenza
0523455863
Richiedi Info dal form:
Accetto l'Informativa Privacy


Condividi

Gruppo CPiace Srl

Piazzale Medaglie D'Oro 7 - Piacenza

Bilocale in Vendita a Piacenza, 125'000€, 72 m², arredato

Chiama
Contatta