Trilocale in Vendita a Capannori, zona Lammari, 298'000€, 95 m²

Locali: 3
Bagni: 1
Camere: 2
Piano: 1°
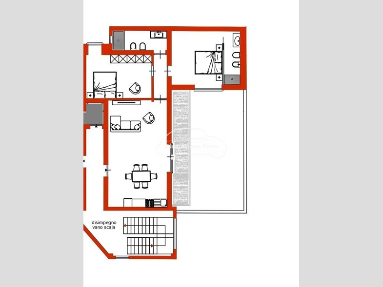
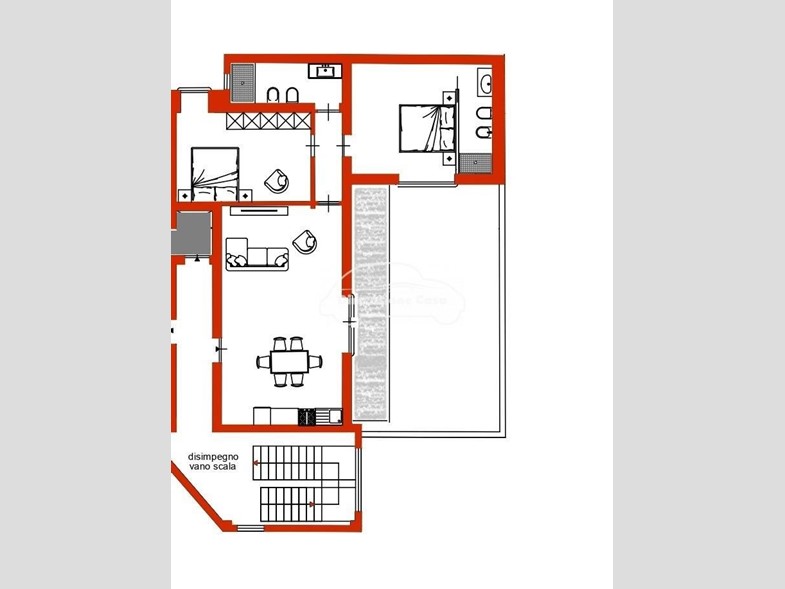
LAMMARI - All’interno di nuovo ed esclusivo complesso residenziale composto da sole 7 unità, in fase di completa ristrutturazione, proponiamo in vendita appartamento posto al piano primo ed ultimo, ideale per chi cerca tranquillità e qualità abitativa. L’immobile si sviluppa su una superficie ben distribuita ed è composto da: ingresso su luminosa zona giorno con soggiorno e angolo cottura ed ampio balcone disimpegno due camere matrimoniali doppi servizi, di cui uno finestrato A corredo due posti auto scoperti all’interno di area chiusa e riservata. L’appartamento gode di ottima luminosità e si inserisce in un contesto residenziale di pregio, circondato da ville e villette perfettamente mantenute, lontano dal traffico ma allo stesso tempo comodo ai principali servizi. Dotazioni e caratteristiche: riscaldamento a pavimento infissi con vetrocamera di ampio spessore caldaia a condensazione struttura con murature di notevole spessore, realizzata con materiali di alta qualità per garantire eccellente isolamento termico e acustico Soluzione ad alta efficienza energetica, con consumi ridotti e massimo comfort abitativo, ideale sia come prima casa che come investimento di qualità. ? Ultimo piano | Contesto esclusivo | Pari al nuovo ? Contattaci per maggiori informazioni o per prenotare una visita. L’indirizzo pubblicato non corrisponde all’esatta ubicazione dell’immobile. Dettagli principali

Condizioni economiche

Contratto: Vendita
Prezzo: 298'000€

Informazioni principali

Tipologia: Trilocale
Città: Capannori
Zona: Lammari
Superficie: 95 m²
N° locali: 3
N° bagni: 1
N° Camere: 2
Piano:
Posto auto: 2

Efficenza energetica

Classe energetica: A1
Ipe: 40,00 kwm2
Anno di costruzione: 2026

Caratteristiche

Videocitofono: si

Dati inserzione

ID Offrocasa.com: 10975318
Data inserimento: 07/02/2026
Rif. Agenzia: 1393192/1178/5794-A
Rif. Agenzia 1393192/1178/5794-A

DIMENSIONE CASA Immobiliare

Via Via Romana,, 2360 - Lucca
0583469841
Richiedi Info dal form:
Accetto l'Informativa Privacy


Condividi

DIMENSIONE CASA Immobiliare

Via Via Romana,, 2360 - Lucca

Trilocale in Vendita a Capannori, zona Lammari, 298'000€, 95 m²

Chiama
Contatta