Trilocale in Vendita a Capannori, zona Lammari, 322'000€, 105 m²

Locali: 3
Bagni: 2
Camere: 2
Piano: piano terra
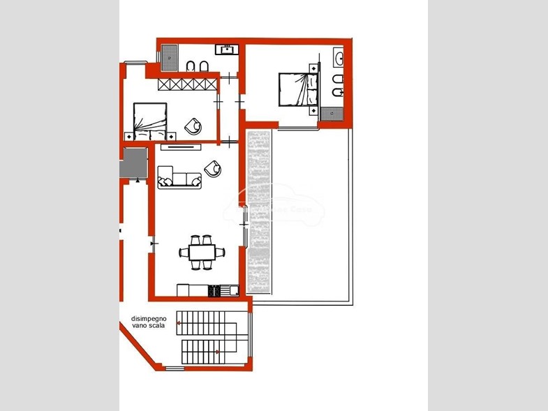
LAMMARI - All’interno di esclusivo complesso residenziale di sole 7 unità, in fase di completa ristrutturato, proponiamo in vendita appartamento con ingresso indipendente posto al piano terreno, per una superficie di circa 105 mq. L’abitazione si distingue per ambienti ampi, luminosi e funzionali ed è composta da: elegante zona giorno open space con soggiorno e angolo cottura a vista, impreziosita da porta finestra con accesso diretto al giardino due camere matrimoniali doppi servizi comodo ripostiglio Completa la proprietà un giardino privato di 42 mq, ideale per momenti di relax all’aperto, oltre a due posti auto scoperti. L’immobile è realizzato in Classe Energetica A, garanzia di comfort abitativo e risparmio energetico, ed è dotato di: riscaldamento a pavimento infissi di ultima generazione ad alta efficienza caldaia a condensazione Soluzione ideale per chi cerca indipendenza, giardino privato e tecnologia moderna, all’interno di un contesto residenziale curato e di completa ristrutturazione. L’indirizzo pubblicato non corrisponde all’esatta ubicazione dell’immobile.

Condizioni economiche

Contratto: Vendita
Prezzo: 322'000€

Informazioni principali

Tipologia: Trilocale
Città: Capannori
Zona: Lammari
Superficie: 105 m²
N° locali: 3
N° bagni: 2
N° Camere: 2
Piano: piano terra
Posto auto: 2
Giardino: privato

Efficenza energetica

Classe energetica: A1
Ipe: 40,00 kwm2
Anno di costruzione: 2026

Caratteristiche

Videocitofono: si

Dati inserzione

ID Offrocasa.com: 10975315
Data inserimento: 07/02/2026
Rif. Agenzia: 1393189/1178/5792-A
Rif. Agenzia 1393189/1178/5792-A

DIMENSIONE CASA Immobiliare

Via Via Romana,, 2360 - Lucca
0583469841
Richiedi Info dal form:
Accetto l'Informativa Privacy


Condividi

DIMENSIONE CASA Immobiliare

Via Via Romana,, 2360 - Lucca

Trilocale in Vendita a Capannori, zona Lammari, 322'000€, 105 m²

Chiama
Contatta