Quadrilocale in Vendita a Busto Arsizio, 230'000€, 126 m², arredato, con Box

Locali: 4
Bagni: 2
Camere: 3
Piano: 6°
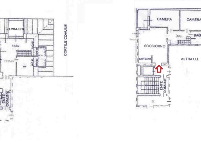
Ultimo piano panoramico su 2 livelli (6° + 7°): privacy, vista e tanta luce Classe energetica A1 + stabile riqualificato: comfort e consumi contenuti Doppi servizi (entrambi completi) + spazi accessori (ripostigli) Terrazzi al piano superiore: outdoor vivibile, perfetto per relax o smart working "all'aria aperta" Zona strategica per Malpensa e Gallarate: comoda per chi lavora in aeroporto o dintorni Contesto moderno e tranquillo: lontano dal traffico, vicino ai servizi Pronta da vivere: inclusi arredo cucina, lavatrice e asciugatrice + cantina Opzioni garage/posti auto: box singolo e 2 posti auto acquistabili a parte Vivere in alto, con luce, spazio e tranquillità (a due passi da Malpensa) A Busto Arsizio in una posizione davvero comoda per chi si sposta spesso tra Gallarate, l'imbocco della S.S. Malpensa e i servizi di tutti i giorni, proponiamo un prestigioso appartamento di ampia metratura su due livelli, situato all'ultimo piano di una palazzina moderna ed efficiente, in classe energetica A1. Appena entri, la sensazione è chiara: ambienti ariosi, luce naturale e una distribuzione intelligente. Al sesto piano ti accoglie una grande zona giorno open space, perfetta per cene con amici, serate cinema o semplicemente per goderti casa senza rinunce. Completano il livello due camere da letto spaziose e un bagno finestrato con box doccia. La scala interna porta al settimo piano, il vero "jolly" per una coppia giovane: un ampio spazio sottotetto (con anche un ingresso indipendente), ideale come studio per smart working, area hobby, zona relax oppure suite ospiti. Qui trovi anche un secondo bagno, ripostiglio e soprattutto due terrazzi che regalano luce tutto il giorno e rendono questo piano un'estensione naturale della casa: colazione al sole, letture al tramonto, piante, oppure una postazione lavoro con un'aria completamente diversa. In più, un ulteriore ripostiglio collegato con scala a scomparsa ti dà quello spazio extra che, nella vita di tutti i giorni, fa davvero la differenza. Lo stabile (fine anni '90) è stato recentemente riqualificato con interventi di riqualificazione energetica, offrendo oggi maggior efficienza, comfort e praticità, con un occhio ai consumi. La casa viene venduta completa di cantina e con arredo cucina, lavatrice, asciugatrice e con anche un set nuovo per l'impianto di climatizzazione: un vantaggio concreto per chi vuole entrare senza pensieri e senza tempi morti. Possibilità di acquisto nello stesso condominio: Box singolo: ? 18.000 2 posti auto: ? 8.000 ciascuno È una soluzione che unisce spazi generosi e vivibilità moderna, in un contesto riservato e tranquillo, ma perfetto per chi desidera avere Malpensa "vicina" e muoversi con facilità ogni giorno. Il proprietario ci tiene a dirlo: questa casa è stata vissuta con cura, pensata nei dettagli e piena di ricordi belli. La vendita nasce esclusivamente da nuove esigenze familiari. Oggi è pronta ad accogliere chi saprà apprezzarne la luce, la privacy e la qualità della vita? e farne la propria casa.

Condizioni economiche

Contratto: Vendita
Prezzo: 230'000€
Arredato: Si
Spese condominiali: 216€

Informazioni principali

Tipologia: Quadrilocale
Città: Busto Arsizio
Superficie: 126 m²
N° locali: 4
N° bagni: 2
N° Camere: 3
Piano:
Box: Si
Cucina: Abitabile
Giardino: Comune

Efficenza energetica

Classe energetica: 2015-A1
Ipe: 85.89 kwm2
Climatizzatore: Si
Anno di costruzione: 1998
Riscaldamento: autonomo

Caratteristiche

Cantina: Si
Ascensore: Si
Videocitofono: Si

Dati inserzione

ID Offrocasa.com: 10974863
Data inserimento: 06/02/2026
Rif. Agenzia: WP230VRG
Rif. Agenzia WP230VRG

Gabetti

Via XXII Marzo 2 - Busto Arsizio (Varese)
0331.67.04.26
Richiedi Info dal form:
Accetto l'Informativa Privacy


Condividi

Gabetti

Via XXII Marzo 2 - Busto Arsizio (Varese)

Quadrilocale in Vendita a Busto Arsizio, 230'000€, 126 m², arredato, con Box

Chiama
Contatta