Appartamento in Vendita a Viareggio, 210'000€, 95 m²

Locali: 5
Bagni: 1
Camere: 2
Piano: 2
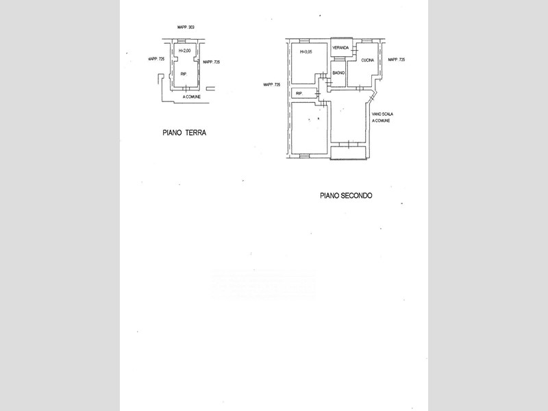
Luminoso Appartamento in vendita con Terrazzi e Cantina in Quartiere Terminetto a Viareggio: Rif. ES602 Se cerchi una soluzione abitativa spaziosa, pronta per essere vissuta e strategicamente posizionata, questa è la soluzione ideale. Situato nel quartiere del Terminetto (Rif: ES602), a breve distanza dal cuore di Viareggio e dal mare, proponiamo in vendita un luminoso appartamento di circa 95 metri quadrati al secondo piano con ascensore. L'immobile si apre su un’accogliente ed ampia sala, perfetta per momenti di relax, con accesso diretto al balcone. La cucina è abitabile e funzionale, servita da una comoda veranda chiusa ad uso lavanderia: uno spazio extra indispensabile per l’ordine quotidiano. La zona notte, ben separata, comprende: due camere matrimoniali di generose dimensioni, difficili da trovare nelle costruzioni moderne, un bagno finestrato, ed un pratico e capiente ripostiglio. L’appartamento è internamente in discrete condizioni e subito abitabile, é dotato di infissi con doppi vetri, oltre ad impianti a norma e aria condizionata con pompa di calore. Completano la proprietà una cantina esclusiva al piano terra oltre alla possibilità di parcheggiare bici e moto all'interno del giardino condominiale. Ideale sia come prima casa per una famiglia, sia come investimento sicuro.. Superficie: 95 mq circa Stato: Abitabile da subito Accessori: Cantina, Veranda lavanderia, Balcone Comfort: Ascensore, Aria Condizionata, Doppi Vetri Plus: Facilità di parcheggio e giardino condominiale per cicli/motocicli Zona residenziale silenziosa ma vicina a tutti i servizi (supermercati, scuole, trasporti, centro città e lungomare). Affacci aperti e ottima esposizione www.immobiliare-leonardo.it Vuoi altre informazioni? Vuoi valutare altre offerte immobiliari? Devi vendere il tuo immobile? Contattaci allo 0584961129 / +393756339708 Oppure vieni a trovarci nella nostra sede di Viareggio in Corso Garibaldi, 170. L'indirizzo proposto può essere nelle vicinanze per ragioni di privacy

Condizioni economiche

Contratto: Vendita
Prezzo: 210'000€
Spese condominiali: 50€
Libero: Si

Informazioni principali

Tipologia: Appartamento
Città: Viareggio
Superficie: 95 m²
N° locali: 5
N° bagni: 1
N° Camere: 2
Piano: 2
Cucina: Si
Giardino: Comune

Efficenza energetica

Classe energetica: G
Ipe: 289,63 kwh_m2
Anno di costruzione: 1970
Riscaldamento: Autonomo

Caratteristiche

Ascensore: Si

Dati inserzione

ID Offrocasa.com: 10974208
Data inserimento: 06/02/2026
Rif. Agenzia: ES602
Rif. Agenzia ES602

Agenzia Immobiliare Leonardo

Corso Garibaldi, 170 - Viareggio (Lucca)
0584.961129
Richiedi Info dal form:
Accetto l'Informativa Privacy


Condividi

Agenzia Immobiliare Leonardo

Corso Garibaldi, 170 - Viareggio (Lucca)

Appartamento in Vendita a Viareggio, 210'000€, 95 m²

Chiama
Contatta