Appartamento in Vendita a Livorno, 229'000€, 120 m², arredato

Locali: 5
Bagni: 2
Camere: 3
Piano: 3°
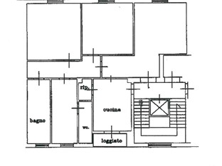
Zona Questura: Ampio appartamento sito al terzo piano con ascensore in bel condominio con corte interna e composto da: ingresso , sala, cucina con balcone e ampio ripostiglio, 3 camere e doppi servizi. L'appartamento fu ristrutturato nei primi anni 2000 e le condizioni interne sono ottime , gli infissi in doppio vetro e alluminio nella zona giorno e in legno e doppio vetro nella zona notte. Termoautonomo. Soffitta di proprietà. € 229.000 [Classe energetica: G]

Condizioni economiche

Contratto: Vendita
Prezzo: 229'000€
Arredato: si

Informazioni principali

Tipologia: Appartamento
Città: Livorno
Superficie: 120 m²
N° locali: 5
N° bagni: 2
N° Camere: 3
Piano:

Efficenza energetica

Classe energetica: G
Ipe: 170,00 kwm2
Ristrutturato: si

Caratteristiche

Ascensore: si

Dati inserzione

ID Offrocasa.com: 10972910
Data inserimento: 05/02/2026
Rif. Agenzia: 1391798/425/110
Rif. Agenzia 1391798/425/110

CENTROSERVIZIMMOBILIARI

Via Via Magenta, 19 - Livorno
0586899000
Richiedi Info dal form:
Accetto l'Informativa Privacy


Condividi

CENTROSERVIZIMMOBILIARI

Via Via Magenta, 19 - Livorno

Appartamento in Vendita a Livorno, 229'000€, 120 m², arredato

Chiama
Contatta