Attico in Vendita a Brindisi, 259'000€, 155 m², con Box

Locali: 3
Bagni: 2
Camere: 2
Piano: 3°
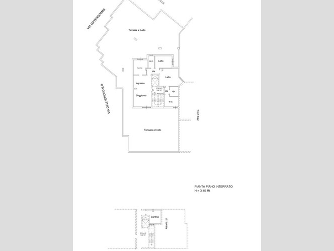
MATERDOMINI: vista mare, si propone elegante attico di 113 mq, ubicato al terzo piano di una palazzina costruita nel 2007, priva di barriere architettoniche. L'immobile si distingue per gli ampi spazi e le finiture di pregio. L'ingresso si apre su un luminoso soggiorno dotato di camino e zona pranzo, collegato a una cucina abitabile con penisola. La zona notte comprende una camera matrimoniale con bagno privato dotato di vasca jacuzzi con idromassaggio e cabina armadio, una cameretta e un secondo bagno con doccia. Gli ambienti sono rifiniti con pavimenti in gres nella zona giorno e parquet nelle camere da letto, conferendo eleganza e calore agli spazi. L'immobile è dotato di riscaldamento autonomo, termoarredi in inox, due porte a tutta altezza a scrigno nella zona giorno, infissi PVC vasistas con tapparelle elettriche e sistema di condizionamento canalizzato in tutti gli ambienti. Sono inoltre presenti porta blindata, videocitofono e sistema di allarme. L'appartamento è circondato da un ampio terrazzo di circa 370 mq, che offre una vista mare panoramica e un'area esterna ideale per momenti di relax. A completare la proprietà vi è un box di ben 34 mq ed una comoda cantina di 11 mq. La facciata condominiale è stata recentemente ristrutturata.

Condizioni economiche

Contratto: Vendita
Prezzo: 259'000€
Arredato: No
Spese condominiali: 130€

Informazioni principali

Tipologia: Attico
Città: Brindisi
Superficie: 155 m²
N° locali: 3
N° bagni: 2
N° Camere: 2
Piano:
Box: Si
Cucina: Abitabile

Efficenza energetica

Classe energetica: 2015-F
Ipe: 0.01 kwm2
Climatizzatore: Si
Anno di costruzione: 2007
Riscaldamento: autonomo

Caratteristiche

Cantina: Si
Ascensore: Si
Videocitofono: Si

Dati inserzione

ID Offrocasa.com: 10971479
Data inserimento: 03/02/2026
Rif. Agenzia: Cod. rif 3244100VRG
Rif. Agenzia Cod. rif 3244100VRG

Gabetti

via Alfredo Cappellini 14 - Brindisi
0831/525591
Richiedi Info dal form:
Accetto l'Informativa Privacy


Condividi

Gabetti

via Alfredo Cappellini 14 - Brindisi

Attico in Vendita a Brindisi, 259'000€, 155 m², con Box

Chiama
Contatta