Quadrilocale in Vendita a Messina, 98'000€, 95 m²

Locali: 4
Bagni: 1
Camere: 3
Piano: 2°
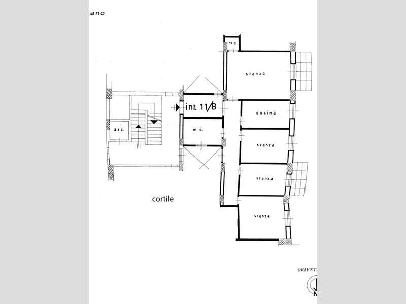
A Messina in zona Provinciale Gabetti propone in vendita un appartamento ubicato al secondo piano di uno stabile composto da cinque piani; questo è provvisto di ascensore, cortile condominiale e posto auto. La costruzione è in buono stato di manutenzione e l'accesso al cortile e ai posti auto è delimitato da una sbarra automatica. L'unità abitativa è dotata di impianto di riscaldamento a radiatori e caldaia e di infissi in vetrocamera ed è così suddivisa: ingresso, salone, tre camere, due balconi, bagno, cucina e ripostiglio. La posizione dell'appartamento consente di avere comodamente tutte le attività commerciali e tutti i servizi a pochi passi da casa, ottimo anche come investimento, subito disponibile!

Condizioni economiche

Contratto: Vendita
Prezzo: 98'000€
Libero: Si

Informazioni principali

Tipologia: Quadrilocale
Città: Messina
Superficie: 95 m²
N° locali: 4
N° bagni: 1
N° Camere: 3
Piano:
Posto auto: Si
Cucina: Abitabile
Giardino: Comune

Efficenza energetica

Classe energetica:
Anno di costruzione: 0
Riscaldamento: autonomo

Caratteristiche

Ascensore: Si

Dati inserzione

ID Offrocasa.com: 10969999
Data inserimento: 31/01/2026
Rif. Agenzia: Cod. rif 3288815VRG
Rif. Agenzia Cod. rif 3288815VRG

Gabetti

Prossima Apertura - - Messina
090.9215851
Richiedi Info dal form:
Accetto l'Informativa Privacy


Condividi

Gabetti

Prossima Apertura - - Messina

Quadrilocale in Vendita a Messina, 98'000€, 95 m²

Chiama
Contatta