Bilocale in Vendita a Bologna, 250'000€, 49 m²

Locali: 2
Bagni: 1
Piano: 1°
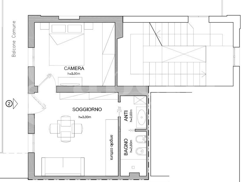
Zona Porta Lame - Via Cipriani: In stabile con poche unità abitative servito da ascensore, Gabetti Zanardi propone in vendita bilocali completamente ristrutturati di diverse tipologie. Tutte le proprietà sono completate da una cantina interrata. Riscaldamento autonomo, basse spese di gestione e possibilità di personalizzazione di finiture. Classe energetica prevista C, D, o E a seconda dell'immobile. La posizione rende l'immobile adatto sia per un uso proprio che per investimento. Possibilità di detrazioni fiscali. Consegna prevista entro Settembre 2026. Rif. C3/AP Prezzo a partire da 230.000 euro. Altre unità immobiliari disponibili Agente incaricato alla vendita Alan Pattarozzi Gabetti Bologna Zanardi.

Condizioni economiche

Contratto: Vendita
Prezzo: 250'000€
Arredato: No
Spese condominiali: 50€
Libero: Si

Informazioni principali

Tipologia: Bilocale
Città: Bologna
Superficie: 49 m²
N° locali: 2
N° bagni: 1
Piano:
Cucina: Angolo Cottura

Efficenza energetica

Classe energetica: 2015-D
Ipe: 0.97 kwm2
Climatizzatore: Si
Anno di costruzione: 1950
Riscaldamento: autonomo

Caratteristiche

Cantina: Si
Ascensore: Si

Dati inserzione

ID Offrocasa.com: 10969977
Data inserimento: 31/01/2026
Rif. Agenzia: C3/APVRG
Rif. Agenzia C3/APVRG

Gabetti

via Zanardi 5 - Bologna
051/524452
Richiedi Info dal form:
Accetto l'Informativa Privacy


Condividi

Gabetti

via Zanardi 5 - Bologna

Bilocale in Vendita a Bologna, 250'000€, 49 m²

Chiama
Contatta