Trilocale in Vendita a Crema, 285'000€, 114 m², con Box

Locali: 3
Camere: 2
Piano: t
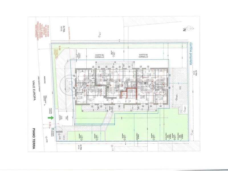
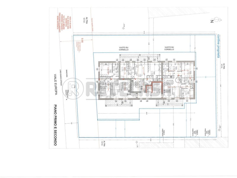
CREMA Viale Europa - zona Ipercoop EDIFICIO DI NUOVA COSTRUZIONE AD ALTA PRESTAZIONE ENERGETICA In posizione servitissima, nuovo condominio composto da 9 unità immobiliari di ampia metratura tutte dotate di giardini privati e/o spaziose logge e box doppi. Ai piani terra e primo DISPONIBILI 4 TRILOCALI composti da ingresso, comoda zona giorno openspace con cucina a vista, doppi servizi, ripostiglio e due camere da letto. I trilocali sono dotati inoltre di giardino privato (piano terra) e/o loggia e di box doppio incluso nel prezzo. La costruzione è INNOVATIVA, ANTISISMICA E PRIVA DI EMISSIONI DA COMBUSTIBILI FOSSILI. Previsti riscaldamento a pavimento di ultima generazione in pompa di calore, impianto fotovoltaico da 3 kw, serramenti esterni in PVC con triplo vetro basso emissivo, cappotto esterno, predisposizione impianto di climatizzazione estiva a split idronici, predisposizione impianto antifurto, pavimenti in gres porcellanato e ceramica monocottura di prima scelta, sanitari sospesi, frangisole motorizzati con cassonetti, sezionale elettrica, portoncino di ingresso blindato e VMC puntuale. Gli appartamenti avranno caratteristiche tali da poter rientrare nella CLASSE DI EFFICIENZA ENERGETICA "A" CERTIFICATA. POSSIBILITA' DETRAZIONI FISCALI. Alcuni dati descrittivi dell'immobile potrebbero essere solo approssimativi (es: spese di riscaldamento, spese condominiali e divisione superfici) e pertanto verranno forniti in modo completo solo telefonicamente oppure in fase di appuntamento. SI PRECISA che l'indirizzo pubblicato INDICA SOLO LA ZONA E/O LA DIREZIONE di ubicazione dell'immobile. Dettagli più precisi verranno forniti solo con contatto telefonico. Per maggiori informazioni o visite contattare senza impegno i numeri 0373/1996506 o 329/6772411. Se preferite, VENITE A CONOSCERCI DI PERSONA, ci trovate a Crema in Viale De Gasperi n. 25.

Condizioni economiche

Contratto: Vendita
Prezzo: 285'000€
Arredato: No

Informazioni principali

Tipologia: Trilocale
Città: Crema
Superficie: 114 m²
N° locali: 3
N° Camere: 2
Piano: t
Box: Si
Cucina: Angolo cottura
Giardino: Si

Efficenza energetica

Classe energetica: A
Anno di costruzione: 2025
Condizioni stabile: Nuovo
Riscaldamento: Autonomo

Caratteristiche

Ascensore: Si

Dati inserzione

ID Offrocasa.com: 10969201
Data inserimento: 30/01/2026
Rif. Agenzia: CREMA394-1-1
Rif. Agenzia CREMA394-1-1

Beni Immobili Srl

Viale De Gasperi 25 - Crema (Cremona)
Richiedi Info dal form:
Accetto l'Informativa Privacy


Condividi

Beni Immobili Srl

Viale De Gasperi 25 - Crema (Cremona)

Trilocale in Vendita a Crema, 285'000€, 114 m², con Box

Contatta