Appartamento in Vendita a Lecce, 235'000€, 100 m², arredato

Locali: 5
Bagni: 2
Camere: 2
Piano: 3°
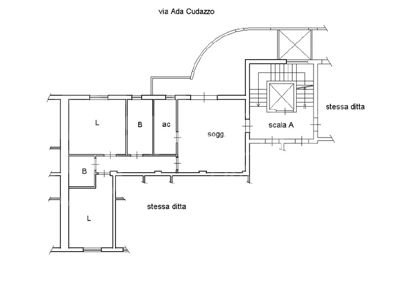
Splendido appartamento ad uso abitativo con 5 locali e 2 bagni, situato in una zona tranquilla e ben servita della città di Lecce, una delle città più affascinanti del Salento. Con una superficie calpestabile di 100 mq, questa proprietà offre ampi spazi luminosi e ben distribuiti, ideali per una famiglia o per chi desidera vivere in un ambiente confortevole e accogliente. Vero plus dell'appartamento è la grande terrazza a livello, perfetta per liete cene all'aperto e per godersi appieno lo spazio esterno. Completa la proprietà la presenza di due comodi box auto nello stesso stabile, un valore aggiunto raro e particolarmente apprezzato in una città come Lecce. La posizione strategica dell'appartamento garantisce la comodità di avere a portata di mano servizi essenziali come fermate del bus, stazione di benzina, parcheggi, farmacie e molto altro. Inoltre, la vivace atmosfera di Lecce, con le sue bellezze storiche e culturali, rende questa proposta ancora più interessante. Non lasciarti sfuggire l'opportunità di vivere in questo incantevole appartamento nel cuore di Lecce: contattami per organizzare una visita e scoprire tutte le sue potenzialità.

Condizioni economiche

Contratto: Vendita
Prezzo: 235'000€
Arredato: Si

Informazioni principali

Tipologia: Appartamento
Città: Lecce
Superficie: 100 m²
N° locali: 5
N° bagni: 2
N° Camere: 2
Piano:
Cucina: Angolo Cottura

Efficenza energetica

Classe energetica:
Anno di costruzione: 0

Caratteristiche

Ascensore: Si

Dati inserzione

ID Offrocasa.com: 10968945
Data inserimento: 30/01/2026
Rif. Agenzia: Cod. rif 3231464VRG
Rif. Agenzia Cod. rif 3231464VRG

Gabetti

Via Imperatore Adriano 42 - Lecce
0832520294
Richiedi Info dal form:
Accetto l'Informativa Privacy


Condividi

Gabetti

Via Imperatore Adriano 42 - Lecce

Appartamento in Vendita a Lecce, 235'000€, 100 m², arredato

Chiama
Contatta