Appartamento in Affitto a Moncalieri, 2'000€, 223 m²

Locali: 6
Bagni: 2
Camere: 3
Piano: 1
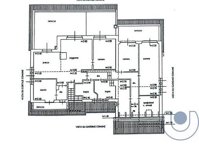
Immersa nel verde e circondata da un vasto parco privato, proponiamo in affitto, appartamento al primo ed ultimo piano in prestigiosa villa libera su quattro lati situata nella rinomata Strada Moncalvo. La proprietà si distingue per un'architettura interna unica e una posizione privilegiata sulla collina, che regala una vista affascinante sull'intera città di Torino e sull'arco alpino. L'appartamento di generose dimensioni è dotato di un terrazzo vivibile. Gli elementi architettonici presenti conferisco originalità all'immobile rendendo gli ambienti caratteristici. La casa si apre con una zona giorno ampia e luminosa ed è così composta: un salone di alta rappresentanza con una sala da pranzo dedicata, ideale per ospitare cene conviviali in un ambiente arioso. La cucina, spaziosa e abitabile, gode di un accesso diretto al balcone. '€‹L'ala privata di questo livello è preceduta da uno studio riservato, perfetto per lo smart working. Attraverso un disimpegno, si accede a una sontuosa sala da bagno dotata di vasca Jacuzzi. La zona notte si sviluppa ulteriormente con una master bedroom di notevoli dimensioni, caratterizzata da un caldo pavimento in parquet e finestre dal design architettonico particolare che incorniciano il paesaggio. '€‹Una suggestiva camera mansardata, ideale come stanza per gli ospiti o area hobby. '€‹Una terza camera versatile, da adattare secondo le proprie esigenze: sala da pranzo, sala cinema o ulteriore camera da letto con affaccio diretto su terrazzo. Completa l'appartamento un'ulteriore servizio. Si tratta di un rifugio ideale per chi desidera immergersi nella tranquillità della collina, senza rinunciare alla comodità di raggiungere il centro in dieci minuti. Un perfetto equilibrio tra relax e praticità. Gli spazi esterni comprendono un giardino condominiale ben mantenuto e un ampio cortile interno. La proprietà dispone inoltre di un posto auto coperto in autorimessa, oltre alla possibilità di usufruire di ulteriori aree di parcheggio all’interno del complesso. La piscina panoramica, affacciata sulla città e sull’arco alpino, completa il tutto e conferisce all’abitazione un carattere esclusivo, inserendola in un contesto residenziale di assoluto pregio sulla collina torinese. Vuoi vendere la tua casa? Contattaci per avere una valutazione GRATUITA e SENZA IMPEGNO! Visita il nostro SITO e i nostri SOCIAL per rimanere aggiornato sulle nostre proposte e sulle novità del mondo immobiliare! Il presente annuncio non costituisce elemento contrattuale.

Condizioni economiche

Contratto: Affitto
Prezzo: 2'000€
Arredato: Parzialmente arredato
Libero: Si

Informazioni principali

Tipologia: Appartamento
Città: Moncalieri
Superficie: 223 m²
N° locali: 6
N° bagni: 2
N° Camere: 3
Piano: 1
Cucina: Si
Giardino: Comune
Esposizione: Sud-Ovest

Efficenza energetica

Classe energetica: F
Ipe: 175,00 kwh_m2
Anno di costruzione: 1969
Condizioni stabile: Molto buono
Riscaldamento: Autonomo

Dati inserzione

ID Offrocasa.com: 10966348
Data inserimento: 28/01/2026
Rif. Agenzia: A00042
Rif. Agenzia A00042

Nuova Rete Casa

Via Principe Amedeo, 2 - Chieri (Torino)
0119427604
Richiedi Info dal form:
Accetto l'Informativa Privacy


Condividi

Nuova Rete Casa

Via Principe Amedeo, 2 - Chieri (Torino)

Appartamento in Affitto a Moncalieri, 2'000€, 223 m²

Chiama
Contatta