Quadrilocale in Vendita a Siena, 255'000€, 100 m²

Locali: 4
Bagni: 2
Camere: 2
Piano: 2°
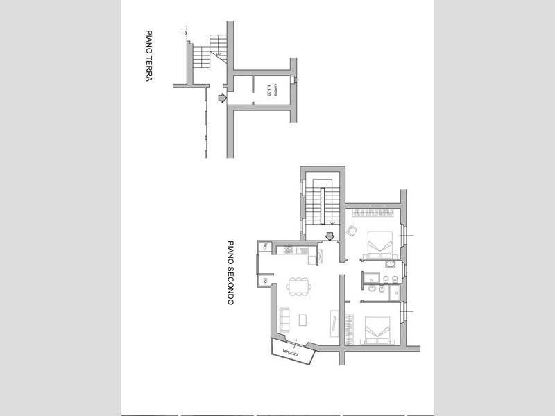
Siena Petriccio In posizione strategica di Siena, appartamento in vendita attualmente in completa ristrutturazione, dotato di una superficie di 100 metri quadrati, posto a secondo piano in piccola palazzina. l'immobile gode di un'ottima esposizione garantendo di molta luminosità, la sua composizione si distribuisce in ingresso, sala ,terrazzo di 4 mq, cucina, due camere matrimoniali, due bagni di cui uno dotato di finestra. Cantina di 10 mq. Posto auto nel piazzale condominiale. Le utenze sono autonome, e la sua classe energetica e' C, predisposizione per aria condizionata. Passaggio all'acquirente di detrazioni fiscali riguardanti la ristrutturazione.

Condizioni economiche

Contratto: Vendita
Prezzo: 255'000€

Informazioni principali

Tipologia: Quadrilocale
Città: Siena
Superficie: 100 m²
N° locali: 4
N° bagni: 2
N° Camere: 2
Piano:
Esposizione: sud ovest

Efficenza energetica

Classe energetica: C
Ipe: 89,00 kwm2
Ristrutturato: si

Dati inserzione

ID Offrocasa.com: 10965451
Data inserimento: 28/01/2026
Rif. Agenzia: 1391016/1121/v11119
Rif. Agenzia 1391016/1121/v11119

ART Immobiliare

Viale Viale Cavour,, 192 - Siena
0577226324
Richiedi Info dal form:
Accetto l'Informativa Privacy


ART Immobiliare

Viale Viale Cavour,, 192 - Siena

Quadrilocale in Vendita a Siena, 255'000€, 100 m²

Chiama
Contatta