Quadrilocale in Vendita a Amantea, 265'000€, 337 m², con Box

Locali: 4
Bagni: 1
Camere: 3
Piano: 1°
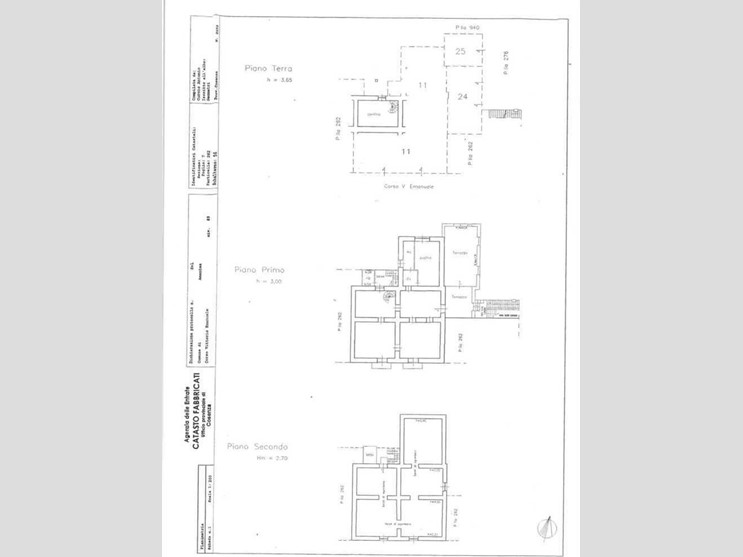
Gabetti Amantea propone appartamento al piano primo composto da: due ampi terrazzi, ingresso-soggiorno, cucina, bagno, tre ampie camere da letto. Compreso nel prezzo una soffitta al piano secondo di 190 mq e due garage al piano terra di 66 mq.

Condizioni economiche

Contratto: Vendita
Prezzo: 265'000€
Arredato: No
Libero: Si

Informazioni principali

Tipologia: Quadrilocale
Città: Amantea
Superficie: 337 m²
N° locali: 4
N° bagni: 1
N° Camere: 3
Piano:
Box: Si
Cucina: Abitabile

Efficenza energetica

Classe energetica:
Anno di costruzione: 0

Dati inserzione

ID Offrocasa.com: 10964936
Data inserimento: 27/01/2026
Rif. Agenzia: Cod. rif 3289505VRG
Rif. Agenzia Cod. rif 3289505VRG

Gabetti

corso Vittorio Emanuele 86 - Amantea (Cosenza)
0982/426475
Richiedi Info dal form:
Accetto l'Informativa Privacy


Condividi

Gabetti

corso Vittorio Emanuele 86 - Amantea (Cosenza)

Quadrilocale in Vendita a Amantea, 265'000€, 337 m², con Box

Chiama
Contatta