Quadrilocale in Vendita a Nettuno, 169'000€, 94 m²

Locali: 4
Bagni: 2
Camere: 2
Piano: 3°
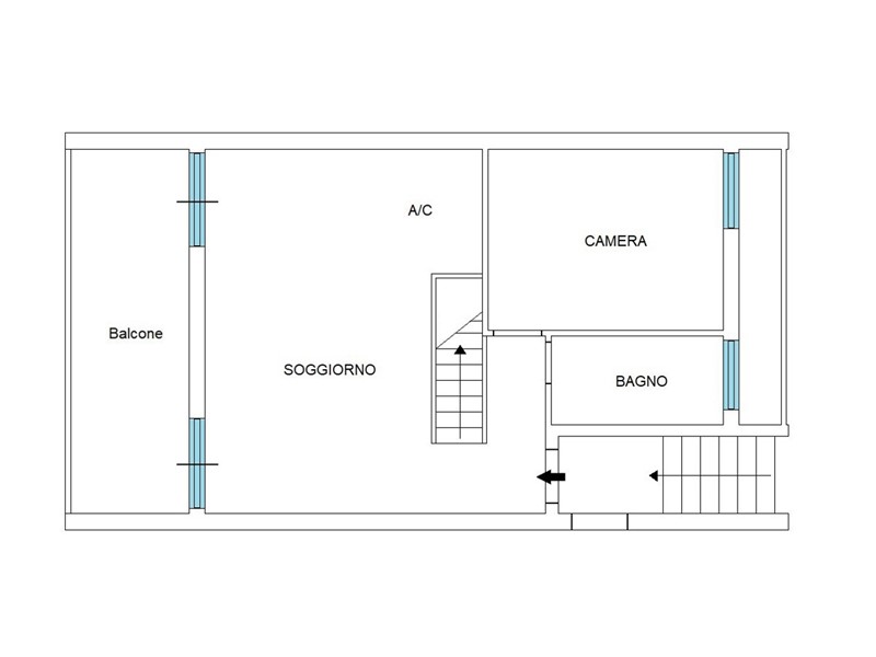
- IN TRATTATIVA - Splendido appartamento ad uso abitativo con 4 locali e 2 bagni, situato nel comune di Nettuno (RM) in via Rosario Livatino. Questa proprietà unica si sviluppa su due livelli, per un totale di 94 mq di superficie. Al primo livello troviamo un accogliente ingresso, un luminoso soggiorno con angolo cottura, un bagno, una camera da letto e un balcone perfetto per godersi momenti di relax all'aria aperta con vista mare. Salendo al piano superiore, si accede a un suggestivo soppalco, una spaziosa camera matrimoniale con cabina armadio, un secondo bagno e un ulteriore balcone. Le spese condominiali ammontano ad ? 100,00 mensili, che includono servizi di pulizia, illuminazione condominiale, cura del giardino, acqua e gestione dei rifiuti. Inoltre, sono in programma lavori di ristrutturazione che comprendono il rifacimento della facciata e la sostituzione degli infissi. I lavori inizieranno ad Aprile con una durata stimata di 4 mesi, come deliberato dall'assemblea condominiale. Completa la proprietà una cantina e due posti auto scoperti. Non lasciarti sfuggire questa opportunità unica di acquistare un appartamento moderno e confortevole a Nettuno. Contattaci per organizzare una visita!

Condizioni economiche

Contratto: Vendita
Prezzo: 169'000€
Spese condominiali: 100€

Informazioni principali

Tipologia: Quadrilocale
Città: Nettuno
Superficie: 94 m²
N° locali: 4
N° bagni: 2
N° Camere: 2
Piano:
Box: Doppio
Cucina: Angolo Cottura

Efficenza energetica

Classe energetica: 2015-E
Ipe: 69.53 kwm2
Climatizzatore: Si
Anno di costruzione: 0
Riscaldamento: autonomo

Caratteristiche

Cantina: Si
Ascensore: Si

Dati inserzione

ID Offrocasa.com: 10964046
Data inserimento: 25/01/2026
Rif. Agenzia: Cod. rif 3289111VRG
Rif. Agenzia Cod. rif 3289111VRG

Professionecasa

via carducci 14/e - Aprilia (Latina)
06 9200689
Richiedi Info dal form:
Accetto l'Informativa Privacy


Condividi

Professionecasa

via carducci 14/e - Aprilia (Latina)

Quadrilocale in Vendita a Nettuno, 169'000€, 94 m²

Chiama
Contatta