Appartamento in Vendita a Benevento, 215'000€, 269 m²

Locali: 8
Bagni: 4
Camere: 8
Piano: 1
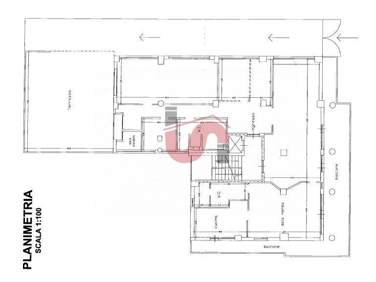
APPARTAMENTO con terrazzo USO UFFICIO/ATTIVITA' - Via A. Meomartini - BN Codice Annuncio: AA39412 L'appartamento in questione si trova in una delle zone più prestigiose di Benevento, precisamente in zona Mellusi/Atlantici, a pochi passi da tutti i servizi necessari e rappresenta un'ottima opportunità per chi cerca un immobile spazioso e ben distribuito con comodi spazi esterni. L’appartamento è stato concesso da numerosi anni in locazione, per attività di asilo nido/ludoteca, e rappresenta un’occasione interessante anche per chi intendesse realizzare un reddito certo, in quanto l’attuale contratto in corso ha durata sino al 01 Luglio 2028, data a partire dalla quale l'immobile deve intendersi libero. Si trova al primo piano di un edificio moderno di 4 piani, dotato di ascensore e la superficie totale è di 269 metri quadrati, di cui 240 metri quadrati calpestabili, oltre ad un balcone fronte strada con la profondità di un terrazzino di 57mq ca ed un comodo terrazzo ad uso esclusivo posto sul retro di 89mq ca. Gli spazi interni sono ampi e luminosi e si articolano su 8 locali, tra cui una cucina attrezzata, un generoso salone doppio, diverse sale e 4 bagni, perfetti per ospitare diverse tipologie di attività/studio o per coloro che necessitano di avere ampi spazi a disposizione. L'appartamento è dotato di un impianto di riscaldamento autonomo a radiatori/pannelli radianti alimentato a metano, ulteriormente potenziato da vetilconvettori nonché condizionatori a parete installati in più punti che garantiscono un comfort termico ottimale durante tutte le stagioni dell'anno. Lo stato di conservazione è buono e non richiede interventi di ripristino, gli infissi sono in ferro. mentre gli ampi spazi esterni di cui dispone l'immobile si prestano a diversi utilizzi dal valore aggiunto per ogni attività, ivi inclusa per quella già in essere, ma anche per uso privato. In sintesi, questo appartamento rappresenta un'ottima soluzione per chi desidera acquistare un immobile spazioso, luminoso e ben distribuito in una delle zone più esclusive di Benevento. L'opportunità di ottenere un reddito tramite la locazione lo rende ancora più interessante e conveniente. Per ulteriori informazioni o per fissare un appuntamento potete contattarci allo 0824275091-92, oppure ai numeri di cellulare 3929735315 e 3920508233 citando il Codice Annuncio: AA39412

Condizioni economiche

Contratto: Vendita
Prezzo: 215'000€
Arredato: Non arredato
Libero: Si

Informazioni principali

Tipologia: Appartamento
Città: Benevento
Superficie: 269 m²
N° locali: 8
N° bagni: 4
N° Camere: 8
Piano: 1

Efficenza energetica

Classe energetica: G
Ipe: 110,00 kwh_m2
Condizioni stabile: Buono
Riscaldamento: Autonomo

Caratteristiche

Ascensore: Si

Dati inserzione

ID Offrocasa.com: 10962091
Data inserimento: 23/01/2026
Rif. Agenzia: AA39412
Rif. Agenzia AA39412

IADANZA SERVIZI IMMOBILIARI RE

Via A. Meomartini, 108 - Benevento
082453792
Richiedi Info dal form:
Accetto l'Informativa Privacy


IADANZA SERVIZI IMMOBILIARI RE

Via A. Meomartini, 108 - Benevento

Appartamento in Vendita a Benevento, 215'000€, 269 m²

Chiama
Contatta