Trilocale in Vendita a Lecco, 370'000€, 120 m²

Locali: 3
Bagni: 2
Camere: 2
Piano: 1
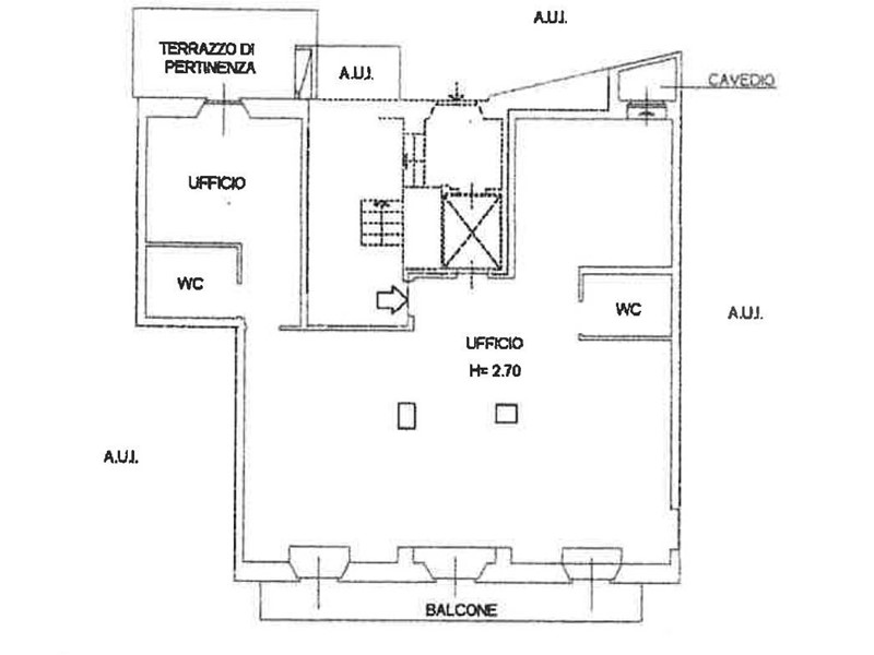
TRILOCALE A LECCO. \nIn complesso residenziale ristrutturato, attualmente accatastato come ufficio sarà oggetto di un cambio di destinazione d'uso in appartamento a cura e spese della parte veditrice. \nE' ideale per la realizzazione di un prestigioso appartamento nel cuore dell'isola pedonale, la cui collocazione urbanistica permette il collegamento alla stazione ferroviaria della città senza utilizzare autovetture o mezzi pubblici. \nFruisce di ampi parcheggi e autosilos cittadini a pochi passi. \nCon un ottimo rapporto qualità prezzo, rappresenta anche una buona opportunità di investimento anche per la locazione di prestigio. \n\nCOMPOSIZIONE:\nPosto al piano primo servito da ascensore, si compone di ingresso, ampio locale open space, tre locali, due bagni, terrazzo retrostante e balcone affacciato sulla centralissima via Roma. \n\nSUPERFICIE:\nSviluppa una superficie commerciale di circa Mq. 120\n\nFINITURE:\nRealizzato in signorile contesto ristrutturato negli anni 2000, è stato ultimato con finiture extra capitolato e materiali idonei alla location, con cura in ogni piccolo particolare. \nBeneficia di una modularità anche per la distribuzione degli spazi. \n \nARREDAMENTO:\nViene proposto NON Arredato\n \nDISPONIBILITA':\nA Partire da Marzo 2026. \n\nRISCALDAMENTO E CLIMATIZZAZIONE:\nRiscaldamento e raffrescamento autonomo con caldaia turbo esterna e pompa di calore radiatori. \nClasse energetica B, indice di prestazione energetica 100.29. \n\nRif. 109 \n \nPer la tutela della Privacy, in alcuni casi su esplicita richiesta del venditore, gli indirizzi sono indicativi. \nPer informazioni chiama subito Ufficio 0341.353.650. Cell. 335.840.1538. \n - Maggiori Dettagli: Balcone, Porta Blindata, Cucina Abitabile, Animali Domestici , Centro Storico, Fermata Bus, Terrazzo Panoramico

Condizioni economiche

Contratto: Vendita
Prezzo: 370'000€

Informazioni principali

Tipologia: Trilocale
Città: Lecco
Superficie: 120 m²
N° locali: 3
N° bagni: 2
N° Camere: 2
Piano: 1
N° balconi: 1
Cucina: Abitabile

Efficenza energetica

Classe energetica: B
Ipe: 100,29 KWh/mq
Climatizzatore: Automo
Anno di costruzione: 2000
Condizioni stabile: ottimo
Ristrutturato: Ottimo
Riscaldamento: Autonomo

Caratteristiche

Ascensore: Si
Videocitofono: Si
Impianto allarme: Si

Dati inserzione

ID Offrocasa.com: 10961615
Data inserimento: 23/01/2026
Rif. Agenzia: Rif. 109
Rif. Agenzia Rif. 109

Studio Ripamonti

Via Largo Caleotto, 15 - Lecco
0341353650
Richiedi Info dal form:
Accetto l'Informativa Privacy


Condividi

Studio Ripamonti

Via Largo Caleotto, 15 - Lecco

Trilocale in Vendita a Lecco, 370'000€, 120 m²

Chiama
Contatta