Trilocale in Vendita a Milano, 415'000€, 75 m², arredato

Locali: 3
Bagni: 1
Camere: 2
Piano: 6°
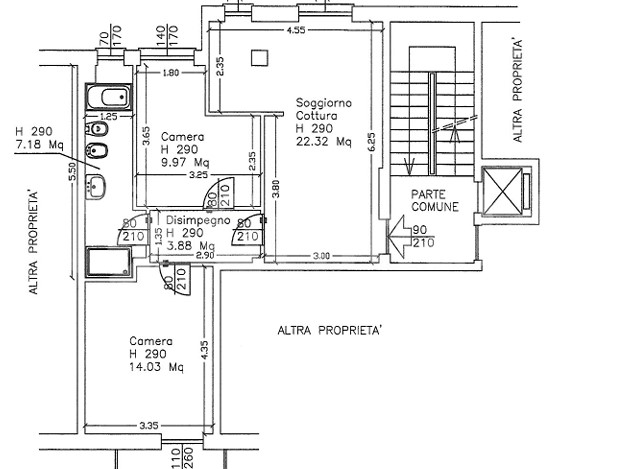
Splendido Trilocale Panoramico in Via Edolo 44, Zona Maggiolina Proponiamo in vendita esclusivo trilocale situato al sesto piano di uno stabile signorile in Via Edolo 44, nel rinomato e richiestissimo quartiere Maggiolina. Questa residenza rappresenta la soluzione ideale per chi cerca un'abitazione chiavi in mano, che combini comfort abitativo, finiture di pregio e una posizione strategica a Milano. Caratteristiche Principali dell'Immobile: L'appartamento, ristrutturato finemente pochi anni fa, si apre su una luminosa e accogliente zona giorno con moderna cucina a vista e affaccio a Est, garantendo un'ottima luminosità durante le ore mattutine. Un pratico disimpegno conduce alla zona notte, composta da: Una funzionale cameretta Una spaziosa camera matrimoniale con accesso diretto a un balcone privato, ideale per momenti di relax Un bagno finestrato elegantemente rifinito, dotato sia di confortevole vasca che di pratico box doccia. Finiture e Comfort: La proprietà si distingue per la cura dei dettagli e i materiali di alta qualità: Pavimentazione in elegante parquet che si estende fluidamente dalla zona giorno alla zona notte Gress porcellanato di design nel bagno Infissi a triplo vetro di ultima generazione, per garantire isolamento termico e acustico ottimali Porta blindata e moderni abbassamenti di volta con illuminazione integrata L'offerta include la cucina su misura completa di elettrodomestici. Contesto e Servizi: La zona della Maggiolina è rinomata per la sua tranquillità residenziale pur essendo perfettamente connessa al cuore pulsante della città. L'ubicazione in Via Edolo 44 offre un accesso privilegiato a una vasta gamma di servizi essenziali (supermercati, negozi, scuole) e a una rete di trasporti pubblici invidiabile: Facilità di collegamento con la Stazione Centrale e con le principali linee metropolitane (vicinanza M3 Sondrio e M2/M3 Centrale) Numerose linee di superficie (autobus e tram) nelle immediate vicinanze. Dettagli Economici: Spese condominiali: circa 200 ? mensili, comprensive di riscaldamento centralizzato e servizio di portineria mezza giornata. Questa è un'opportunità unica per acquistare un immobile pronto da abitare, in una delle zone più ambite di Milano. Contattateci subito per fissare un appuntamento e scoprire il vostro futuro appartamento!

Condizioni economiche

Contratto: Vendita
Prezzo: 415'000€
Arredato: Si
Spese condominiali: 200€
Libero: Si

Informazioni principali

Tipologia: Trilocale
Città: Milano
Superficie: 75 m²
N° locali: 3
N° bagni: 1
N° Camere: 2
Piano:
Cucina: Abitabile
Giardino: Comune

Efficenza energetica

Classe energetica: 2015-E
Ipe: 150.00 kwm2
Climatizzatore: Si
Anno di costruzione: 1950
Riscaldamento: centralizzato

Caratteristiche

Ascensore: Si
Videocitofono: Si

Dati inserzione

ID Offrocasa.com: 10961264
Data inserimento: 22/01/2026
Rif. Agenzia: Cod. rif 3288530VRG
Rif. Agenzia Cod. rif 3288530VRG

Andalust s.n.c. di Daniele Perra & C.

Via Melchiorre Gioia 131 - Milano
0267481302
Richiedi Info dal form:
Accetto l'Informativa Privacy


Condividi

Andalust s.n.c. di Daniele Perra & C.

Via Melchiorre Gioia 131 - Milano

Trilocale in Vendita a Milano, 415'000€, 75 m², arredato

Chiama
Contatta