Trilocale in Vendita a Alba Adriatica, 170'000€, 118 m², arredato, con Box

Locali: 3
Bagni: 2
Camere: 2
Piano: 1°
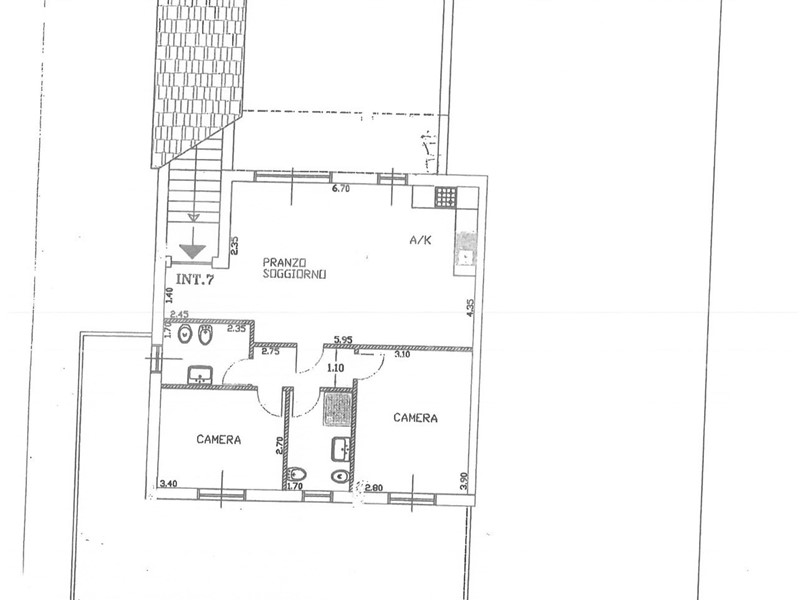
Rif. A143 ALBA ADRIATICA: proponiamo in vendita splendido appartamento ad Alba Adriatica (TE). Questa elegante residenza vanta una superficie interna di 75 mq e 70 mq di terrazzi, perfetta per chi desidera spazi ampi e confortevoli. Costruito nel 2006, l'appartamento si trova al primo piano di un edificio senza ascensore, in una tranquilla zona residenziale. L'immobile, arredato con gusto e cura, offre un ambiente accogliente e luminoso. L'ampio soggiorno con cucina a vista è il cuore della casa, ideale per trascorrere piacevoli momenti in compagnia. Le due spaziose camere da letto matrimoniali assicurano il massimo comfort, mentre i due bagni finestrati, uno con vasca e uno con doccia, garantiscono la massima funzionalità. La proprietà vanta due grandi terrazzi abitabili, uno esposto ad Est e uno ad Ovest, perfetti per godersi il sole e l'aria aperta in totale relax. Inoltre, al piano terra due posti auto offrono la massima comodità per il parcheggio. Dotato di ogni comfort, tra cui porta blindata, infissi in PVC doppio vetro, tapparelle, zanzariere, tende da sole, impianto a metano con termosifoni e condizionatori caldo/freddo, questo appartamento è pronto per accogliere una nuova famiglia. Completa la proprietà un grande garage al prezzo di ? 28.000. La sua posizione strategica, vicina a tutti i servizi essenziali e alle principali vie di comunicazione, rende questa proprietà ancora più allettante. Non lasciarti sfuggire l'opportunità di vivere in un ambiente raffinato e confortevole, contattaci per organizzare una visita e scoprire di persona tutte le potenzialità di questa meravigliosa residenza. Ci trovate in Viale Lungomare Marconi, 80 ad Alba Adriatica. Potete contattarci ai numeri: Fisso: 0861.1864850 oppure tramite WhatsApp al 347.1498674, registrando il nostro numero potrete accedere al catalogo delle nostre migliori proposte e ricevere aggiornamenti. "Gabetti. E sei già a casa", per gli amici, per la famiglia o da condividere con la persona con cui abbiamo deciso di passare la nostra vita.

Condizioni economiche

Contratto: Vendita
Prezzo: 170'000€
Arredato: Si

Informazioni principali

Tipologia: Trilocale
Città: Alba Adriatica
Superficie: 118 m²
N° locali: 3
N° bagni: 2
N° Camere: 2
Piano:
Box: Si
Cucina: Abitabile

Efficenza energetica

Classe energetica:
Climatizzatore: Si
Anno di costruzione: 2006
Riscaldamento: autonomo

Dati inserzione

ID Offrocasa.com: 10961164
Data inserimento: 22/01/2026
Rif. Agenzia: Cod. rif A143VRG
Rif. Agenzia Cod. rif A143VRG

Gabetti

Lungomare Marconi 80 - Alba Adriatica (Teramo)
0861.1864850
Richiedi Info dal form:
Accetto l'Informativa Privacy


Condividi

Gabetti

Lungomare Marconi 80 - Alba Adriatica (Teramo)

Trilocale in Vendita a Alba Adriatica, 170'000€, 118 m², arredato, con Box

Chiama
Contatta