Quadrilocale in Vendita a Messina, 260'000€, 133 m², con Box

Locali: 4
Bagni: 2
Camere: 3
Piano: 1°
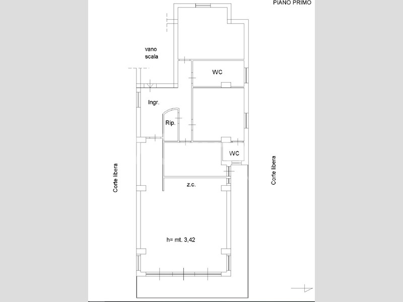
A Briga Marina, tranquilla e suggestiva località a sud di Messina, la Grimaldi Immobiliare propone in vendita un appartamento panoramico posto al primo piano di una palazzina composta da sole tre unità abitative. La proprietà include anche un ampio garage con servizio e ingresso indipendente dalla S.S. 114. La distribuzione interna è caratterizzata da ingresso su ampio salone con zona cottura, con splendida vista sullo stretto di Messina, corridoio di disimpegno, tre camere da letto, di cui una con bagno privato, bagno principale e comodo ripostiglio. La zona è ben servita dai mezzi pubblici e rappresenta un'ottima alternativa alla vita in città, grazie alla vicinanza allo svincolo autostradale di Tremestieri, raggiungibile in pochi minuti. Per maggiori informazioni o per fissare un appuntamento, contattaci al numero 090 2931748, disponibile anche su WhatsApp, oppure inviaci un'e-mail all'indirizzo messina.sud@grimaldifranchising.it.

Condizioni economiche

Contratto: Vendita
Prezzo: 260'000€
Arredato: No

Informazioni principali

Tipologia: Quadrilocale
Città: Messina
Superficie: 133 m²
N° locali: 4
N° bagni: 2
N° Camere: 3
Piano:
Box: Si
Cucina: Angolo Cottura
Giardino: Privato

Efficenza energetica

Classe energetica: 2015-E
Ipe: 72.39 kwm2
Climatizzatore: Si
Anno di costruzione: 0
Riscaldamento: autonomo

Caratteristiche

Ascensore: Si

Dati inserzione

ID Offrocasa.com: 10961026
Data inserimento: 22/01/2026
Rif. Agenzia: 0681-42VRG
Rif. Agenzia 0681-42VRG

Grimaldi Immobiliare

Va Catania 198 - Messina
090/2931748
Richiedi Info dal form:
Accetto l'Informativa Privacy


Condividi

Grimaldi Immobiliare

Va Catania 198 - Messina

Quadrilocale in Vendita a Messina, 260'000€, 133 m², con Box

Chiama
Contatta