Bilocale in Vendita a Bergamo, 139'000€, 55 m²

Locali: 2
Bagni: 1
Camere: 1
Piano: Terra
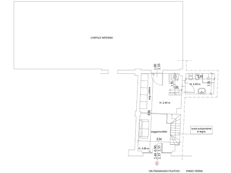
BERGAMO - PIAZZALE RISORGIMENTO - LORETO Atmosfera Case propone in Esclusiva, in zona intima nel cuore del quartiere di Loreto, a due passi da Piazzale Risorgimento, introvabile, nuovissimo e raffinato Loft Bilocale disposto su due livelli con soppalco di design. L'ingresso avviene dal Passaggio del Filatoio, una via esclusivamente pedonale ed a fondo chiuso con affaccio finale su un tranquillo parco verde. La soluzione è attualmente in fase di ristrutturazione ed internamente sarà così disposta: ingresso tramite ampia vetrata che rende molto luminosa ed accogliente la zona giorno open-space con cucina a vista, porta finestra con accesso diretto al secondo affaccio su un'area esterna, disimpegno con angolo lavanderia e comodo bagno con doccia. La scala interna in ferro battuto/similare conduce al piano superiore soppalcato con travetti in legno bianchi, dove troviamo la camera da letto illuminata dal grande lucernario Velux automatizzato (140x114 cm). L'immobile verrà consegnato pronto da abitare con le seguenti finiture: pavimentazione in parquet in rovere in tutta l'abitazione, nuovi infissi in PVC doppio vetro, termoautonomo con caldaia a condensazione, predisposizione impianto allarme e videosorveglianza, aria condizionata/pompa di calore, videocitofono, controsoffittature in cartongesso con faretti led, possibilità scelta personalizzazione posa parapetto in vetro del soppalco, rifacimento delle facciate e nuova pavimentazione dell'area esterna. Nuovi impianti termoidraulico ed elettrico certificati. NO SPESE CONDOMINIALI. Ottimo anche per investimento!

Condizioni economiche

Contratto: Vendita
Prezzo: 139'000€
Arredato: Parzialmente arredato
Libero: Si

Informazioni principali

Tipologia: Bilocale
Città: Bergamo
Superficie: 55 m²
N° locali: 2
N° bagni: 1
N° Camere: 1
Piano: Terra
Giardino: Privato

Efficenza energetica

Classe energetica:
Anno di costruzione: 2026
Condizioni stabile: Restaurato
Riscaldamento: Autonomo

Dati inserzione

ID Offrocasa.com: 10960733
Data inserimento: 22/01/2026
Rif. Agenzia: 1001
Rif. Agenzia 1001

Atmosfera Case

Via Bianzana, 3 - Bergamo
035240174
Richiedi Info dal form:
Accetto l'Informativa Privacy


Atmosfera Case

Via Bianzana, 3 - Bergamo

Bilocale in Vendita a Bergamo, 139'000€, 55 m²

Chiama
Contatta