Quadrilocale in Affitto a Lecce, 2'500€, 258 m², con Box

Locali: 4
Camere: 3
Piano: 1
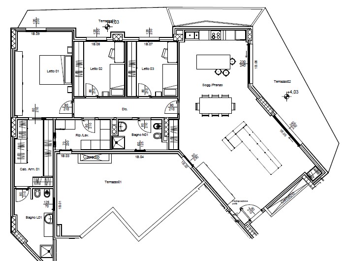
GRIMALDI STORE LECCE Vico dei Fieschi 16, 73100 Lecce Ampio quadrilocale con box in zona Mazzini, presso stabile attualmente in costruzione In via Minniti, angolo via 95° Reggimento Fanteria, in zona centrale e ottimamente servita, proponiamo quadrilocale di nuova costruzione, situato al primo piano di un moderno edificio dotato di ascensore, disponibile in locazione. L’immobile si distingue per ambienti ampi e luminosi e per una distribuzione interna razionale e funzionale. L’ingresso conduce a una spaziosa zona giorno doppia con angolo cottura a vista, ideale per un utilizzo quotidiano confortevole e per momenti di convivialità. La zona notte è composta da tre camere da letto e due bagni finemente rifiniti, di cui uno en suite nella stanza padronale. Completano la proprietà un comodo ripostiglio ad uso lavanderia, un ampio terrazzo a livello, perfetto per vivere gli spazi esterni, e un box auto incluso nel prezzo. L’appartamento è nuovo, rifinito con materiali di qualità e dotato di impianti di ultima generazione. La classe energetica A4 garantisce elevati standard di efficienza e un significativo contenimento dei consumi. Soluzione ideale per famiglie o per chi ricerca un’abitazione moderna, spaziosa e pronta da abitare, in una delle zone più comode e richieste della città. GRIMALDI STORE LECCE 0832 1902429 / 393 9035134 info@grimaldistorelecce.it

Condizioni economiche

Contratto: Affitto
Prezzo: 2'500€
Arredato: No

Informazioni principali

Tipologia: Quadrilocale
Città: Lecce
Superficie: 258 m²
N° locali: 4
N° Camere: 3
Piano: 1
Box: Si
Cucina: Semi abitabile

Efficenza energetica

Classe energetica: A4
Anno di costruzione: 2025
Condizioni stabile: In costruzione
Riscaldamento: Autonomo

Caratteristiche

Ascensore: Si

Dati inserzione

ID Offrocasa.com: 10960320
Data inserimento: 21/01/2026
Rif. Agenzia: 2500MINNITI
Rif. Agenzia 2500MINNITI

Nike Immobiliare Srl

Via Vico dei Fieschi 16 - Lecce
0832.1902429
Richiedi Info dal form:
Accetto l'Informativa Privacy


Condividi

Nike Immobiliare Srl

Via Vico dei Fieschi 16 - Lecce

Quadrilocale in Affitto a Lecce, 2'500€, 258 m², con Box

Chiama
Contatta