Appartamento in Vendita a Genova, 54'660€, 112 m²

Locali: 6
Camere: 2
Piano: 2
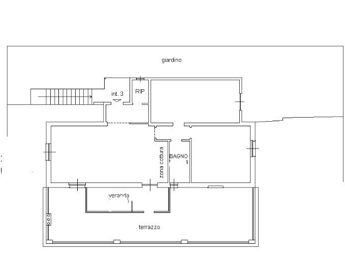
Immobile in Comune di Genova (GE) – Via San Carlo di Cese, Edificio 36H, interno 3, esteso su tutto il piano secondo di palazzina a tre livelli sopraelevata rispetto alla strada con accesso autonomo e indipendente a mezzo scala esterna composto da ingresso, soggiorno con angolo di cottura, veranda, due camere, bagno, ripostiglio con vano doccia oltre terrazza al piano e giardino. - Il Prezzo visualizzato è la Base d'Asta in quanto l’immobile è oggetto di esecuzione immobiliare venduto tramite Asta Giudiziaria. - L'immobile aggiudicato, viene venduto libero e sgombro da persone cose ed ipoteche nello stato di fatto e di diritto in cui si trova. - Non rappresentiamo il Tribunale, ma lavoriamo nell'esclusivo interesse del potenziale acquirente per garantire un acquisto sicuro. - I consulenti di ASTE ITALIA ti assisteranno in tutte le attività dell'iter giudiziario dalla visita dell'immobile fino alla consegna chiavi. - Contatta il nostro Servizio Clienti , i nostri operatori sono a disposizione per chiarire i molteplici dubbi per partecipare alle ASTE.

Condizioni economiche

Contratto: Vendita
Prezzo: 54'660€
Arredato: No

Informazioni principali

Tipologia: Appartamento
Città: Genova
Superficie: 112 m²
N° locali: 6
N° Camere: 2
Piano: 2
Cucina: Angolo cottura
Giardino: Si

Efficenza energetica

Classe energetica: G
Anno di costruzione: 0
Condizioni stabile: Discreto
Riscaldamento: Autonomo

Dati inserzione

ID Offrocasa.com: 10960283
Data inserimento: 21/01/2026
Rif. Agenzia: GE199/24L1-2703-26-1430
Rif. Agenzia GE199/24L1-2703-26-1430

ASTE ITALIA

Via Serra 6 Int 7 - Genova (GE)
010.8935240
Richiedi Info dal form:
Accetto l'Informativa Privacy


Condividi

ASTE ITALIA

Via Serra 6 Int 7 - Genova (GE)

Appartamento in Vendita a Genova, 54'660€, 112 m²

Chiama
Contatta