Appartamento in Vendita a Savona, 146'025€, 149 m²

Locali: 7
Camere: 2
Piano: 2
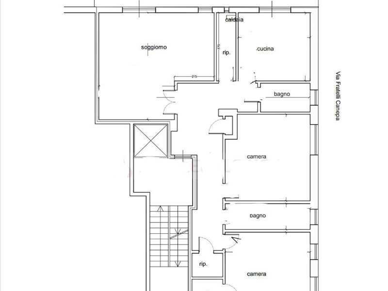
Nel condominio denominato “Le Agavi” piena proprietà di appartamento interno 4, posto al piano secondo, scala C, composto da: disimpegno/corridoio, sala con balcone, 2 ripostigli, cucina con balcone, 2 bagni, 2 camere; il tutto sviluppa una superficie commerciale di mq. 148,50. - Il Prezzo visualizzato è la Base d'Asta in quanto l’immobile è oggetto di esecuzione immobiliare venduto tramite Asta Giudiziaria. - L'immobile aggiudicato, viene venduto libero e sgombro da persone cose ed ipoteche nello stato di fatto e di diritto in cui si trova. - Non rappresentiamo il Tribunale, ma lavoriamo nell'esclusivo interesse del potenziale acquirente per garantire un acquisto sicuro. - I consulenti di ASTE ITALIA ti assisteranno in tutte le attività dell'iter giudiziario dalla visita dell'immobile fino alla consegna chiavi. - Contatta il nostro Servizio Clienti , i nostri operatori sono a disposizione per chiarire i molteplici dubbi per partecipare alle ASTE.

Condizioni economiche

Contratto: Vendita
Prezzo: 146'025€
Arredato: No

Informazioni principali

Tipologia: Appartamento
Città: Savona
Superficie: 149 m²
N° locali: 7
N° Camere: 2
Piano: 2
N° balconi: 2
Cucina: Abitabile

Efficenza energetica

Classe energetica: G
Anno di costruzione: 0
Condizioni stabile: Buono
Riscaldamento: Autonomo

Caratteristiche

Ascensore: Si

Dati inserzione

ID Offrocasa.com: 10960282
Data inserimento: 21/01/2026
Rif. Agenzia: SV13/25LU-2503-26-1300
Rif. Agenzia SV13/25LU-2503-26-1300

ASTE ITALIA

Via Serra 6 Int 7 - Genova (GE)
010.8935240
Richiedi Info dal form:
Accetto l'Informativa Privacy


Condividi

ASTE ITALIA

Via Serra 6 Int 7 - Genova (GE)

Appartamento in Vendita a Savona, 146'025€, 149 m²

Chiama
Contatta