Trilocale in Vendita a Roma, 639'000€, 120 m²

Locali: 3
Bagni: 2
Camere: 2
Piano: 2°
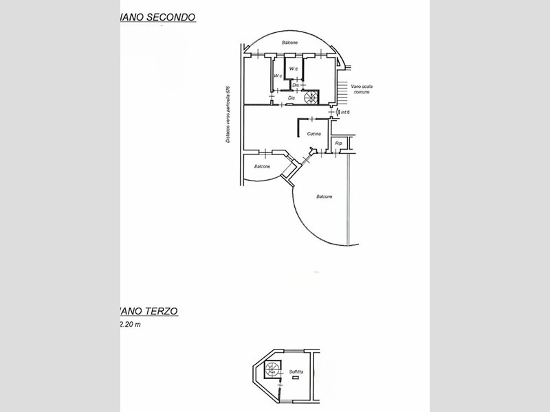
Bilivello ristrutturato con terrazzo Grottaperfetta, uno dei quartieri più piacevoli e verdi della Capitale, proponiamo in vendita un elegante appartamento su due livelli con ampio terrazzo, situato in una palazzina in cortina di soli tre piani, dotata di ascensore con accesso diretto anche ai box auto. La proprietà, posta al secondo e terzo piano, gode di un'ottima esposizione e si distingue per la luminosità e la qualità delle finiture. Il primo livello si apre su un ingresso che conduce a un ampio salone con accesso al terrazzo vivibile. La cucina è abitabile e anch'essa dotata di uscita sul terrazzo. La zona notte comprende due camere da letto con armadi a muro, due bagni e un disimpegno che collega in modo funzionale gli ambienti. Una scala interna collega il piano superiore, dove si trova una spaziosa soffitta con altezza di 2,20 metri, ideale come studio, zona relax o spazio multifunzionale. Ristrutturato nel 2022, l'appartamento è stato concepito secondo i più alti standard costruttivi, con pavimenti in parquet, porta blindata, infissi moderni con doppi vetri, tapparelle elettriche, grate di sicurezza, riscaldamento e condizionamento autonomi. La zona è ben collegata al centro di Roma grazie a una rete efficiente di trasporti pubblici, ed è facilmente raggiungibile anche con mezzi privati. Il prezzo richiesto, comprensivo di box auto, è di ? 639.000,00. Classe energetica G, IPE 175 kWh/m² anno. Per informazioni e visite è possibile contattare il numero 0681150218, dove un consulente sarà a completa disposizione.

Condizioni economiche

Contratto: Vendita
Prezzo: 639'000€
Arredato: No

Informazioni principali

Tipologia: Trilocale
Città: Roma
Superficie: 120 m²
N° locali: 3
N° bagni: 2
N° Camere: 2
Piano:
Cucina: Abitabile

Efficenza energetica

Classe energetica: 2015-G
Ipe: 175.00 kwm2
Anno di costruzione: 0

Dati inserzione

ID Offrocasa.com: 10959437
Data inserimento: 20/01/2026
Rif. Agenzia: VS35/25VRG
Rif. Agenzia VS35/25VRG

Soluzioni Immobiliari srl

Via Alessio Baldovinetti 97 - Roma
0681150214
Richiedi Info dal form:
Accetto l'Informativa Privacy


Soluzioni Immobiliari srl

Via Alessio Baldovinetti 97 - Roma

Trilocale in Vendita a Roma, 639'000€, 120 m²

Chiama
Contatta