Quadrilocale in Vendita a Bologna, 250'000€, 90 m²

Locali: 4
Bagni: 1
Camere: 2
Piano: 1°
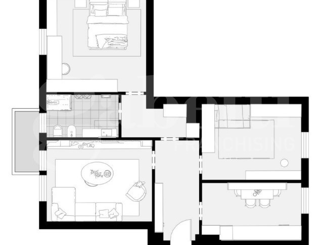
APPARTAMENTO QUADRILOCALE ZONA SANTA VIOLA Via Spadini- Quadrilocale di 90 mq catastali posto al 1° piano servito da ascensore e composto da: -Cucina abitabile -Sala con accesso ad un balcone -2 camere matrimoniali -bagno finestrato -ripostiglio -cantina di proprietà al piano S1 Il riscaldamento è centralizzato e le spese condominiali sono di ? 2 .000 annue comprensive di riscaldamento. Ape in fase di redazione. L'immobile presenta finiture originali e necessita di parziale ristrutturazione. È facilmente personalizzabile ed è anche adatto a un acquisto per investimento. La zona presenta tutti i servizi necessari e comprende nelle immediate vicinanze parchi, un centro commerciale, farmacie, banche, scuole e negozi per ogni necessità. L'immobile è libero a Rogito Rif. 06/CB Prezzo di vendita: ? 250.000,00 Agente incaricato alla vendita Benedetto Cassano Gabetti Bologna Zanardi - Tel. 051 524452 bozanardi@gabetti.it

Condizioni economiche

Contratto: Vendita
Prezzo: 250'000€
Arredato: No
Spese condominiali: 160€
Libero: Si

Informazioni principali

Tipologia: Quadrilocale
Città: Bologna
Superficie: 90 m²
N° locali: 4
N° bagni: 1
N° Camere: 2
Piano:
Cucina: Abitabile
Giardino: Comune

Efficenza energetica

Classe energetica:
Ipe: 0.00 kwm2
Anno di costruzione: 1970
Riscaldamento: centralizzato

Caratteristiche

Cantina: Si
Ascensore: Si
Videocitofono: Si

Dati inserzione

ID Offrocasa.com: 10958333
Data inserimento: 18/01/2026
Rif. Agenzia: 06/CBVRG
Rif. Agenzia 06/CBVRG

Gabetti

via Zanardi 5 - Bologna
051/524452
Richiedi Info dal form:
Accetto l'Informativa Privacy


Condividi

Gabetti

via Zanardi 5 - Bologna

Quadrilocale in Vendita a Bologna, 250'000€, 90 m²

Chiama
Contatta