Casa Semi Indipendente in Vendita a Imola, 385'000€, 110 m², con Box

Locali: 5
Camere: 3
Piano: t
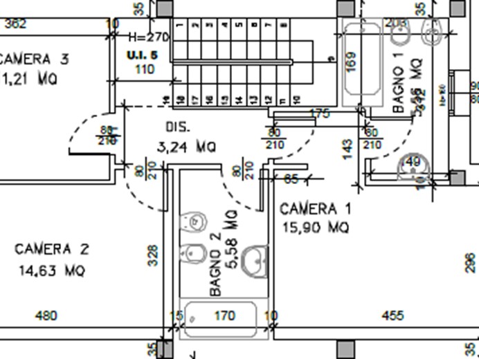
All’interno di un delizioso borghetto residenziale proponiamo un’ampia villa a schiera disposta su due livelli, dotata di ingresso indipendente e giardino privato. Piano terra La proprietà si apre su un giardino di proprietà esclusiva e offre una zona giorno molto luminosa, composta da soggiorno, cucina abitabile e bagno a servizio del piano. Piano primo La zona notte comprende tre camere da letto – una singola e due matrimoniali – un bagno, una cabina armadio e la possibilità di realizzare un terzo bagno, secondo le proprie esigenze. A lato dell’abitazione è presente un ampio garage di proprietà; inoltre, all’interno del borgo, vi è la possibilità di acquistare un posto auto. Il Nuovo Borgo sorge in un contesto esclusivo, curato e tranquillo, immerso nella verde e rilassante campagna imolese, ma a breve distanza dal centro città. La zona è comoda a tutti i servizi e il centro è raggiungibile in pochi minuti in auto, bicicletta o autobus. Qui prenderanno vita ville di altissima qualità tecnologica, progettate con particolare attenzione al risparmio energetico. Scegliendo Restage S.r.l. sono inclusi numerosi servizi nel prezzo: Vendita diretta dal costruttore Nessuna spesa di mediazione Architetto dedicato per la personalizzazione degli spazi Professionisti qualificati che seguiranno l’intero iter burocratico, con interfaccia diretta con notai e istituti bancari

Condizioni economiche

Contratto: Vendita
Prezzo: 385'000€
Arredato: No
Spese condominiali: 10€

Informazioni principali

Tipologia: Casa Semi Indipendente
Città: Imola
Vicinanze: Tranquilla
Superficie: 110 m²
N° locali: 5
N° Camere: 3
Piano: t
Box: Si
Posto auto: Si
Cucina: Abitabile
Giardino: Si

Efficenza energetica

Classe energetica: A
Anno di costruzione: 2026
Condizioni stabile: In costruzione
Riscaldamento: Autonomo

Dati inserzione

ID Offrocasa.com: 10958073
Data inserimento: 17/01/2026
Rif. Agenzia: imola2-schiera
Rif. Agenzia imola2-schiera

Restage Srl

Via Tagliapietre 8 - Bologna
051 6750342
Richiedi Info dal form:
Accetto l'Informativa Privacy


Restage Srl

Via Tagliapietre 8 - Bologna

Casa Semi Indipendente in Vendita a Imola, 385'000€, 110 m², con Box

Chiama
Contatta