Quadrilocale in Vendita a Ronco Scrivia, zona Borgo Fornari, 30'750€, 71 m²

Locali: 4
Camere: 1
Piano: 3
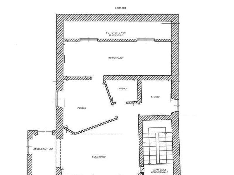
Piena proprietà di appartamento ubicato in Ronco Scrivia (Ge), frazione di Borgo Fornari, Corso Trento e Trieste, edificio 174, piano 3°, l’immobile occupa parte del 3° piano sottotetto dell’edificio ed è composto da soggiorno in ingresso con angolo cottura, un locale studio, un bagno, una camera da letto ed un locale sgombero/ripostiglio, superficie commerciale mq 71,34. - Il Prezzo visualizzato è la Base d'Asta in quanto l’immobile è oggetto di esecuzione immobiliare venduto tramite Asta Giudiziaria. - L'immobile aggiudicato, viene venduto libero e sgombro da persone cose ed ipoteche nello stato di fatto e di diritto in cui si trova. - Non rappresentiamo il Tribunale, ma lavoriamo nell'esclusivo interesse del potenziale acquirente per garantire un acquisto sicuro. - I consulenti di ASTE ITALIA ti assisteranno in tutte le attività dell'iter giudiziario dalla visita dell'immobile fino alla consegna chiavi. - Contatta il nostro Servizio Clienti , i nostri operatori sono a disposizione per chiarire i molteplici dubbi per partecipare alle ASTE.

Condizioni economiche

Contratto: Vendita
Prezzo: 30'750€
Arredato: No

Informazioni principali

Tipologia: Quadrilocale
Città: Ronco Scrivia
Zona: Borgo Fornari
Superficie: 71 m²
N° locali: 4
N° Camere: 1
Piano: 3
Cucina: Angolo cottura

Efficenza energetica

Classe energetica: G
Anno di costruzione: 0
Condizioni stabile: Discreto
Riscaldamento: Autonomo

Dati inserzione

ID Offrocasa.com: 10957016
Data inserimento: 16/01/2026
Rif. Agenzia: GE424/23L3-1401-26-1600
Rif. Agenzia GE424/23L3-1401-26-1600

Domy Online S.r.l.

Via San Lorenzo 5/41 - Genova
010.8935187
Richiedi Info dal form:
Accetto l'Informativa Privacy


Condividi

Domy Online S.r.l.

Via San Lorenzo 5/41 - Genova

Quadrilocale in Vendita a Ronco Scrivia, zona Borgo Fornari, 30'750€, 71 m²

Chiama
Contatta