Quadrilocale in Vendita a Viareggio, 245'000€, 75 m²

Locali: 4
Bagni: 1
Camere: 2
Piano: 1°
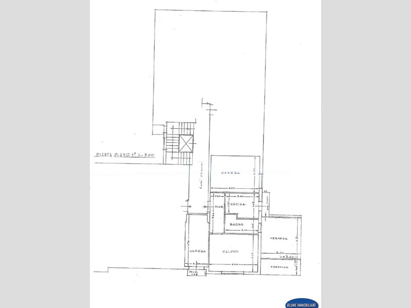
Viareggio Centro In posizione strategica, con negozi e servizi vicini e a 15 minuti dal mare, proponiamo in vendita un appartamento di quattro locali, situato al primo piano di palazzina condominiale corredata di ascensore. La proprietà si presenta in buone condizioni di manutenzione e si estende su una superficie di 75 metri quadrati oltre a terrazza a ampia veranda interna. L'ingresso tradizionale vi accompagnerà in un ampio soggiorno con cucina abitabile e con accesso a veranda, disimpegno notte, una camera matrimoniale, una cameretta con balcone ed un bagno con vasca e finestra. La richiesta è di euro 245.000. Classe Energetica F Rif. 3896V3 Per motivi di privacy, l'indirizzo è solo indicativo della zona in cui si trova l'immobile. Agenzia Blume Immobiliare di Iacometti Antonella tel. 329 4127852

Condizioni economiche

Contratto: Vendita
Prezzo: 245'000€
Prezzo trattabile: si

Informazioni principali

Tipologia: Quadrilocale
Città: Viareggio
Superficie: 75 m²
N° locali: 4
N° bagni: 1
N° Camere: 2
Piano:

Efficenza energetica

Classe energetica: F
Ipe: 127,00 kwm2
Ristrutturato: si

Caratteristiche

Ascensore: si

Dati inserzione

ID Offrocasa.com: 10955330
Data inserimento: 15/01/2026
Rif. Agenzia: 1386346/384/3896V3
Rif. Agenzia 1386346/384/3896V3

BLUME Immobiliare

Via Via Antonio Fratti,, 281 - Viareggio (Lucca)
058456158
Richiedi Info dal form:
Accetto l'Informativa Privacy


Condividi

BLUME Immobiliare

Via Via Antonio Fratti,, 281 - Viareggio (Lucca)

Quadrilocale in Vendita a Viareggio, 245'000€, 75 m²

Chiama
Contatta