Trilocale in Vendita a Alessandria, 47'831€, 59 m²

Locali: 3
Camere: 1
Piano: 1
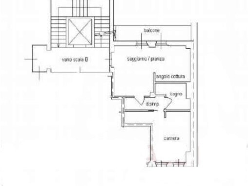
Alloggio sito al piano primo (scala B int. 1) di un edificio residenziale denominato "Condominio La Baratta" a otto piani fuori terra di recente costruzione, con cantina di pertinenza al piano interrato. L'alloggio è composto da ingresso su soggiorno/pranzo, disimpegno, una camera, un bagno cieco e balcone. - Il Prezzo visualizzato è la Base d'Asta in quanto l’immobile è oggetto di esecuzione immobiliare venduto tramite Asta Giudiziaria. - L'immobile aggiudicato, viene venduto libero e sgombro da persone cose ed ipoteche nello stato di fatto e di diritto in cui si trova. - Non rappresentiamo il Tribunale, ma lavoriamo nell'esclusivo interesse del potenziale acquirente per garantire un acquisto sicuro. - I consulenti di ASTE ITALIA ti assisteranno in tutte le attività dell'iter giudiziario dalla visita dell'immobile fino alla consegna chiavi. - Contatta il nostro Servizio Clienti , i nostri operatori sono a disposizione per chiarire i molteplici dubbi per partecipare alle ASTE.

Condizioni economiche

Contratto: Vendita
Prezzo: 47'831€
Arredato: No

Informazioni principali

Tipologia: Trilocale
Città: Alessandria
Superficie: 59 m²
N° locali: 3
N° Camere: 1
Piano: 1
N° balconi: 1
Cucina: Angolo cottura

Efficenza energetica

Classe energetica: G
Anno di costruzione: 0
Condizioni stabile: Buono
Riscaldamento: Autonomo

Caratteristiche

Cantina: Si
Ascensore: Si

Dati inserzione

ID Offrocasa.com: 10954975
Data inserimento: 14/01/2026
Rif. Agenzia: AL39/22LU-2304-26-1600
Rif. Agenzia AL39/22LU-2304-26-1600

ASTE ITALIA

Via Serra 6 Int 7 - Genova (GE)
010.8935240
Richiedi Info dal form:
Accetto l'Informativa Privacy


Condividi

ASTE ITALIA

Via Serra 6 Int 7 - Genova (GE)

Trilocale in Vendita a Alessandria, 47'831€, 59 m²

Chiama
Contatta