Appartamento in Vendita a Roma, 850'000€, 235 m²

Locali: 5
Bagni: 3
Camere: 3
Piano: 5°
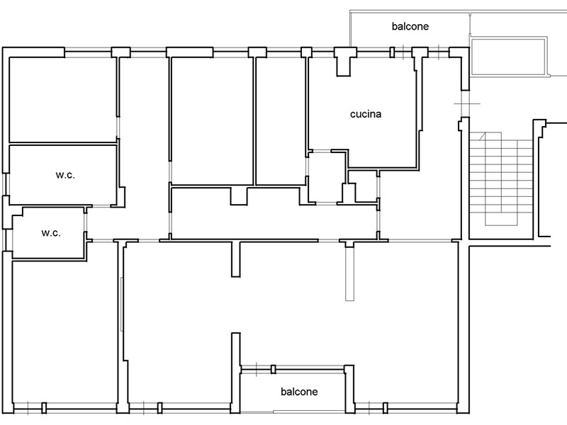
GabettiBalduina Piazza della Balduina in stabile con servizio di portineria doppio ascensore appartamento al 5° piano con vista panoramica sulla cupola e affaccio aperto sulla Piazza composto da ingresso principale con comodo armadio spogliatoio, salone triplo con balcone, corridoio con armadi a muro, zona di servizio con cucina abitabile dove è presente il secondo ingresso ed un balcone e un grande bagno con doccia, disimpegno zona notte con finestra ed angolo studio, 3 camere da letto (possibilità quarta camera), 2 bagni di cui uno con vasca idromassaggio e cantina ? 850.000,00 - GABETTI Agenzia Balduina - 06.35402994 - 331.3146178 - Peculiarità: alte potenzialità di ridistribuzione degli spazi interni e/o frazionamento. Pavimentazione omogenea in parquet, riscaldamento centralizzato a consumo, portone d'ingresso blindato. Per gli amanti della natura a pochi minuti dall'abitazione si trova l'accesso alla pista ciclopedonale che costeggia il Parco del Pineto e che arriva fino a Monte Ciocci del quartiere Aurelio e da dove si potrà godere di una bellissima vista di Roma dall'alto, lungo la camminata si trovano alcune aree attrezzate per bambini, panchine, fontanelle, etc... La zona è ben servita e ottimamente collegata al centro città raggiungibile in pochi minuti con autobus e/o FL3 stazione Balduina. GABETTI Agenzia BALDUINA - CAMILLUCCIA Prenota un appuntamento contattando lo 06.35402994 oppure il 331.3146178

Condizioni economiche

Contratto: Vendita
Prezzo: 850'000€
Arredato: No
Spese condominiali: 285€
Libero: Si

Informazioni principali

Tipologia: Appartamento
Città: Roma
Superficie: 235 m²
N° locali: 5
N° bagni: 3
N° Camere: 3
Piano:
Cucina: Abitabile

Efficenza energetica

Classe energetica:
Anno di costruzione: 0
Riscaldamento: centralizzato

Caratteristiche

Cantina: Si
Ascensore: Si

Dati inserzione

ID Offrocasa.com: 10954763
Data inserimento: 14/01/2026
Rif. Agenzia: Cod. rif 3285550VRG
Rif. Agenzia Cod. rif 3285550VRG

Gabetti

piazza della Balduina 28 - Roma
06/35402994
Richiedi Info dal form:
Accetto l'Informativa Privacy


Condividi

Gabetti

piazza della Balduina 28 - Roma

Appartamento in Vendita a Roma, 850'000€, 235 m²

Chiama
Contatta