Quadrilocale in Vendita a Follo, 76'500€, 72 m²

Locali: 4
Camere: 2
Piano: t
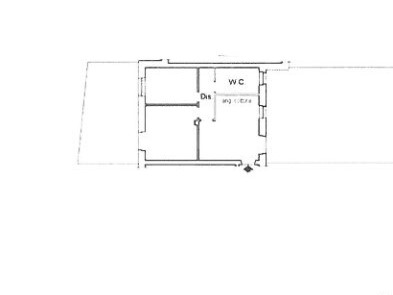
Quota di 1/1 di piena proprietà di appartamento con ingresso indipendente della superficie commerciale di 71,70 mq. facente parte di un compendio immobiliare di recente edificazione con parti ancora in corso costruzione, sito in località Pian di Follo, in Via XV Febbraio 10/A, Comune di Follo (SP). L'appartamento posto al piano terra è composto da soggiorno con angolo cottura, disimpegno, due camere e servizio igienico, - Il Prezzo visualizzato è la Base d'Asta in quanto l’immobile è oggetto di esecuzione immobiliare venduto tramite Asta Giudiziaria. - L'immobile aggiudicato, viene venduto libero e sgombro da persone cose ed ipoteche nello stato di fatto e di diritto in cui si trova. - Non rappresentiamo il Tribunale, ma lavoriamo nell'esclusivo interesse del potenziale acquirente per garantire un acquisto sicuro. - I consulenti di ASTE ITALIA ti assisteranno in tutte le attività dell'iter giudiziario dalla visita dell'immobile fino alla consegna chiavi. - Contatta il nostro Servizio Clienti , i nostri operatori sono a disposizione per chiarire i molteplici dubbi per partecipare alle ASTE.

Condizioni economiche

Contratto: Vendita
Prezzo: 76'500€
Arredato: No

Informazioni principali

Tipologia: Quadrilocale
Città: Follo
Superficie: 72 m²
N° locali: 4
N° Camere: 2
Piano: t
Cucina: Angolo cottura

Efficenza energetica

Classe energetica: G
Anno di costruzione: 0
Condizioni stabile: Buono
Riscaldamento: Autonomo

Dati inserzione

ID Offrocasa.com: 10953801
Data inserimento: 13/01/2026
Rif. Agenzia: SP92/20L6-2304-26-1115
Rif. Agenzia SP92/20L6-2304-26-1115

ASTE ITALIA

Via Serra 6 Int 7 - Genova (GE)
010.8935240
Richiedi Info dal form:
Accetto l'Informativa Privacy


Condividi

ASTE ITALIA

Via Serra 6 Int 7 - Genova (GE)

Quadrilocale in Vendita a Follo, 76'500€, 72 m²

Chiama
Contatta