Attico in Vendita a Rivoli, 355'000€, 123 m², con Box

Locali: 4
Bagni: 2
Camere: 2
Piano: 6°
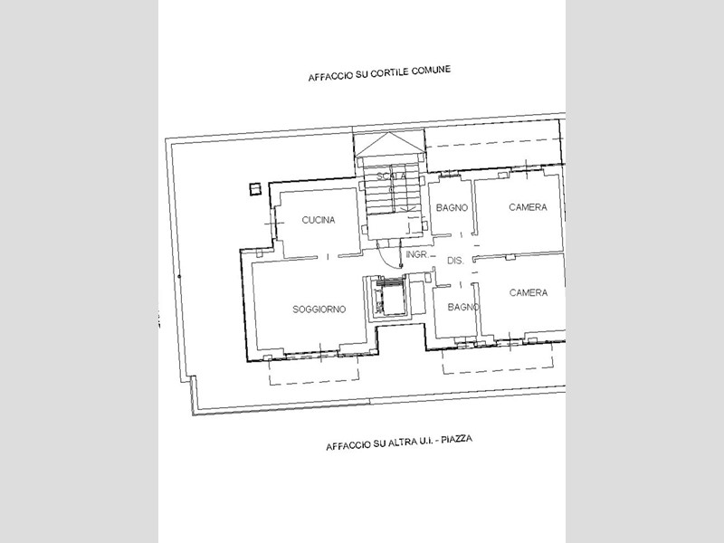
La Gabetti di Rivoli propone in vendita, in un elegante stabile di nuova generazione costruito nel 2020, uno splendido attico che unisce stile contemporaneo, privacy e massimo comfort abitativo. L'appartamento si sviluppa su un unico livello ed offre una zona giorno luminosa con soggiorno che si affaccia sulla cucina abitabile, due bagni finestrati uno con doccia e l'altro con vasca, pensati per garantire massima praticità nel quotidiano. Le due camere da letto sono spaziose e consentono di accogliere un letto matrimoniale. La metratura interna permette una distribuzione armoniosa degli arredi ed elemento distintivo della proprietà e' lo straordinario terrazzo perimetrale sui tre lati, ideale per vivere a pieno momenti di relax con amici. L'ascensore con accesso diretto all'appartamento aggiunge un tocco di esclusività e comodità. Le finiture sono di alto livello e comprendono pavimenti in Gres porcellanato, aria condizionata, porta blindata videocitofono, impianto antifurto perimetrale volumetrico. Completa la soluzione un box auto singolo e la cantina incluso nel prezzo. Nessuna barriera architettonica. Possibilità box auto a parte. Contattaci oggi stesso per fissare una visita e scoprire di persona questo opportunità esclusiva. La presente descrizione ha valore puramente indicativo e non costituisce elemento contrattuale ne presupposto contrattuale. Tutte le misure eventualmente riportate devono considerarsi indicative. Richiedi ora un appuntamento per visionare l'immobile o per una valutazione gratuita e senza impegno del tuo immobile contattaci al tel 011.9566022 - cell 3515047619

Condizioni economiche

Contratto: Vendita
Prezzo: 355'000€
Arredato: No
Spese condominiali: 125€
Libero: Si

Informazioni principali

Tipologia: Attico
Città: Rivoli
Superficie: 123 m²
N° locali: 4
N° bagni: 2
N° Camere: 2
Piano:
Box: Si
Cucina: Abitabile
Giardino: Comune

Efficenza energetica

Classe energetica: 2015-A1
Ipe: 80.11 kwm2
Anno di costruzione: 2020
Riscaldamento: autonomo

Caratteristiche

Cantina: Si
Ascensore: Si
Videocitofono: Si

Dati inserzione

ID Offrocasa.com: 10953696
Data inserimento: 13/01/2026
Rif. Agenzia: Cod. rif 3285678VRG
Rif. Agenzia Cod. rif 3285678VRG

Gabetti

corso Susa 50 - Rivoli (Torino)
011/9566022
Richiedi Info dal form:
Accetto l'Informativa Privacy


Condividi

Gabetti

corso Susa 50 - Rivoli (Torino)

Attico in Vendita a Rivoli, 355'000€, 123 m², con Box

Chiama
Contatta