Quadrilocale in Vendita a Milano, 595'000€, 180 m², con Box

Locali: 4
Bagni: 2
Camere: 3
Piano: 16°
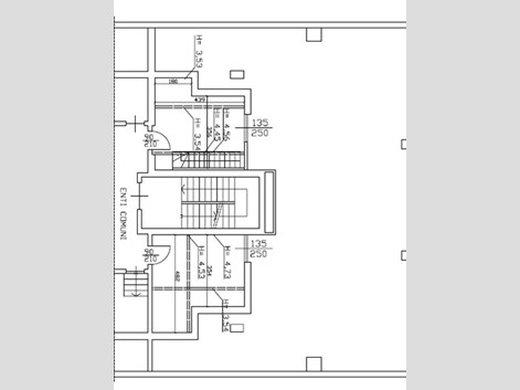
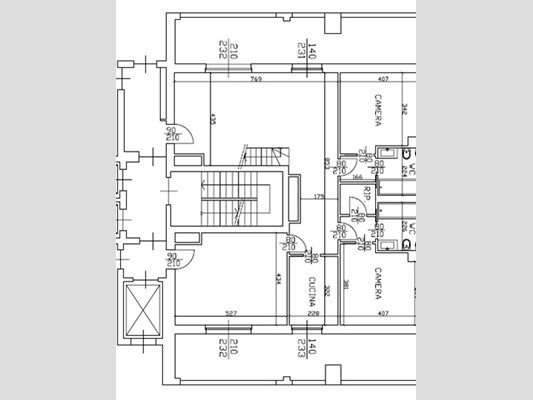
Prestigioso Attico Plurilocale su Due Livelli con Terrazzi Panoramici - Milano In uno stabile moderno e signorile edificato nel 2007, dotato di triplo ascensore e servizio di portineria attivo tutta la giornata, proponiamo in vendita un elegante attico plurilocale distribuito sugli ultimi due piani (16° e 17°), caratterizzato da ampi spazi interni, grandi terrazzi e una splendida luminosità garantita dalla tripla esposizione sud-est-ovest. L'immobile si distingue per la generosa metratura e una disposizione che garantisce privacy e funzionalità. Al 16° piano si sviluppa la vera anima abitativa, con doppio ingresso, due saloni doppi, entrambi con accesso a terrazzi di 20 mq, cucina abitabile, tre camere da letto e due bagni finestrati. Una scala interna conduce al 17° piano (non residenziale), un ambiente versatile e open, collegato al fiore all'occhiello della proprietà: un magnifico terrazzo panoramico di 120 mq, perfetto per momenti di relax, convivialità e verde urbano. Completano la proprietà: - Cantina di pertinenza - Magazzino di 40 mq - Possibilità di acquistare fino a due box auto (anche singolarmente) a 28.000 ? ciascuno L'attico si presenta in ottime condizioni, con finiture di capitolato, aria condizionata, impianto di allarme e materiali di qualità che conferiscono eleganza e comfort all'intero immobile. Posizione e quartiere: La Via Don Francesco Beniamino Della Torre si trova nell'area ovest di Milano, in un contesto residenziale ben collegato e con servizi di prossimità. La zona è apprezzata per la sua tranquillità, pur restando facilmente raggiungibile dal centro città e da importanti nodi di trasporto pubblico. Nelle immediate vicinanze si trovano supermercati, bar, ristoranti, scuole, banche, farmacie e altri servizi quotidiani, rendendo l'area comoda e vivibile per famiglie, professionisti e studenti. La zona è ben servita dal trasporto pubblico, a pochi minuti a piedi si trova la fermata Certosa, utile per autobus di superficie e tram. La stazione ferroviaria Milano Certosa è raggiungibile a piedi in breve tempo, offrendo collegamenti con treni suburbani e regionali. Numerose anche le linee autobus (come le 40, 57, 35 e N57), che permettono spostamenti rapidi verso altre zone della città. Le linee metro M1 e M3 sono accessibili con brevi tragitti, collegando agevolmente al centro e alle aree metropolitane. Soluzione unica per chi desidera vivere Milano dall'alto, in un contesto riservato, moderno e ben servito. La metratura indicata in annuncio è da intendersi commerciale e comprensiva di tutte le eventuali pertinenze indirette, così come risultante dalla documentazione catastale in nostro possesso. E' pertanto indicativa e non costituisce elemento contrattuale.

Condizioni economiche

Contratto: Vendita
Prezzo: 595'000€
Spese condominiali: 650€
Libero: Si

Informazioni principali

Tipologia: Quadrilocale
Città: Milano
Superficie: 180 m²
N° locali: 4
N° bagni: 2
N° Camere: 3
Piano: 16°
Box: Si
Cucina: Abitabile

Efficenza energetica

Classe energetica:
Ipe: 0.00 kwm2
Climatizzatore: Si
Anno di costruzione: 2007
Riscaldamento: centralizzato

Caratteristiche

Cantina: Si
Ascensore: Si

Dati inserzione

ID Offrocasa.com: 10953665
Data inserimento: 13/01/2026
Rif. Agenzia: Cod. rif 3285972VRG
Rif. Agenzia Cod. rif 3285972VRG

Gabetti

VIA PORDENONE 13 - Milano
02.26416484
Richiedi Info dal form:
Accetto l'Informativa Privacy


Condividi

Gabetti

VIA PORDENONE 13 - Milano

Quadrilocale in Vendita a Milano, 595'000€, 180 m², con Box

Chiama
Contatta