Ufficio in Affitto a Siracusa, 6'500€, 440 m²

Locali: 10
Bagni: 2
Piano: Terra
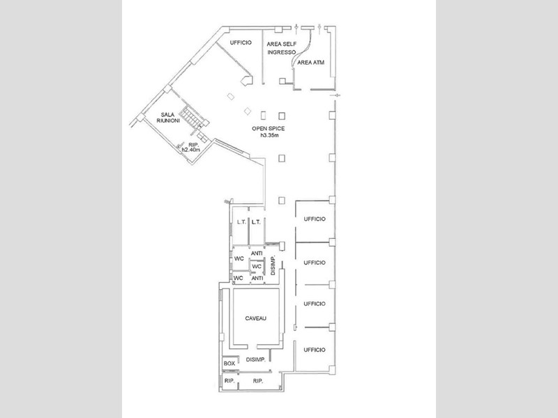
Gabetti Avola propone in affitto nella città di Siracusa, un luminoso e spazioso basso commerciale ad uso ufficio-negozio con vetrine fronte strada ad alta visibilità categoria D/5 di 440 mq. Situato in via Malta n.85 angolo via Tripoli n.1 una zona di forte passaggio automobilistico e pedonale adiacente al Parco del Foro di SIRACUSA, l' immobile offre un doppio ingresso indipendente e le condizioni interne sono buone, con efficienti impianti elettrici e di climatizzazione per garantire il massimo comfort. Attualmente libero, l'ufficio vanta una doppia esposizione, con 10 grandi vetrine che garantiscono massima visibilità e luminosità inondando di luce naturale gli ambienti durante tutta la giornata. Ideale per chi cerca uno spazio ampio e funzionale per svolgere attività professionali in un contesto accogliente e ben curato. Un opportunità rara per chi cerca prestigio ed un forte impatto visivo. Contattaci per organizzare una visita e scoprire tutte le potenzialità di questo immobile.

Condizioni economiche

Contratto: Affitto
Prezzo: 6'500€
Libero: Si

Informazioni principali

Tipologia: Ufficio
Città: Siracusa
Superficie: 440 m²
N° locali: 10
N° bagni: 2
Piano: Terra

Efficenza energetica

Classe energetica:
Climatizzatore: Si
Anno di costruzione: 0

Dati inserzione

ID Offrocasa.com: 10952958
Data inserimento: 12/01/2026
Rif. Agenzia: Cod. rif 3285811ACU
Rif. Agenzia Cod. rif 3285811ACU

Gabetti

Via Venezia 23 - Avola (Siracusa)
0931/316104
Richiedi Info dal form:
Accetto l'Informativa Privacy


Gabetti

Via Venezia 23 - Avola (Siracusa)

Ufficio in Affitto a Siracusa, 6'500€, 440 m²

Chiama
Contatta