Ufficio in Vendita a Benevento, 610'000€, 1630 m²

Locali: 10+
Bagni: 5
Piano: Su due livelli
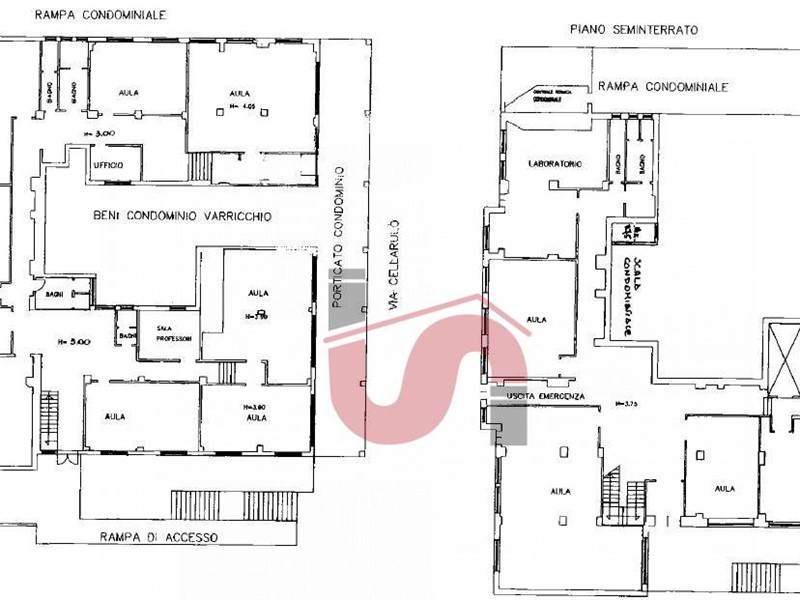
PORZIONE DI FABBRICATO 1.630 mq uso SCUOLA/UFFICIO in VENDITA in pieno centro cittadino di Benevento Codice Annuncio: AA39383 Novità: Si include nel prezzo del locale annessa area aperta recintata di circa 350mq con accesso carrabile, da utilizzare come parcheggio o altro. Proponiamo in vendita porzione di un fabbricato urbano in Benevento alla Via Cellarulo (già Viale San Lorenzo) nelle immediate vicinanze del Santuario della Madonna delle Grazie posto su due livelli per complessivi mq 1.630 circa. L'immobile è composto da piano terra di mq 870 circa, con accesso attraverso una rampa pedonale e un porticato, suddiviso in n. 10 vani oltre 3 wc e deposito con 5 porte/vetrine direttamente sul fronte strada; piano seminterrato di mq 760 circa, con accesso sia mediante ampia scala interna con gradini in marmo collegata al piano sovrastante che da una rampa di scale esterna in mattoni, composto da n. 5 vani oltre 2 bagni ed un ampio deposito. Ad entrambi i piani sono ubicate uscite di sicurezza dotate di maniglione antipanico. Il locale presenta pavimenti in mattonelle di graniglia al piano terra e mattonelle di gress al piano seminterrato; gli infissi esterni sono in ferro con vetro semplice e quelli interni in legno verniciato; è dotato di impianto elettrico, telefonico, idrico, di riscaldamento, di rilevazione dei fumi con certificazione 46/90 mentre il certificato antincendio risulta da rinnovare. Sul retro al piano seminterrato presenta un fascia di pertinenza che insiste su area agricola, mentre su un lato confina con area condominiale e sull'altro parte con terrapieno e parte su area a cielo libero. L'immobile che è ubicato nelle immediate vicinanze del Santuario Madonna delle Grazie, poco distante dalla Stazione Ferroviaria Appia e dall'Istituto Tecnico G.B. Lucarelli con ampia possibilità di parcheggio, è stato da sempre adibito a sede scolastica prima del Liceo Artistico di Benevento e poi quale succursale dell'Istituto Tecnico "G.B Lucarelli". Per la sua conformazione si presta dunque soprattutto ad un utilizzo analogo nonché uso ufficio, ma non si esclude l'insediamento di attività che necessitino di particolari spazi in zone tuttavia centrali della città. Per avere maggiori informazioni o per visionare la soluzione potrete chiamarci ai seguenti recapiti 0824-275092 / 275091 oppure cell.: 393/9801451 - 392/9735315 - 392/0508233. Codice dell' Annuncio: AA39383

Condizioni economiche

Contratto: Vendita
Prezzo: 610'000€
Arredato: Non arredato
Spese condominiali: 75€
Libero: Si

Informazioni principali

Tipologia: Ufficio
Città: Benevento
Superficie: 1630 m²
N° locali: 10+
N° bagni: 5
Piano: Su due livelli
Giardino: Privato

Efficenza energetica

Classe energetica: G
Riscaldamento: Autonomo

Dati inserzione

ID Offrocasa.com: 10952748
Data inserimento: 11/01/2026
Rif. Agenzia: AA39383
Rif. Agenzia AA39383

IADANZA SERVIZI IMMOBILIARI RE

Via A. Meomartini, 108 - Benevento
082453792
Richiedi Info dal form:
Accetto l'Informativa Privacy


IADANZA SERVIZI IMMOBILIARI RE

Via A. Meomartini, 108 - Benevento

Ufficio in Vendita a Benevento, 610'000€, 1630 m²

Chiama
Contatta