Appartamento in Vendita a Poggibonsi, 225'000€, 114 m², con Box

Locali: 6
Bagni: 2
Camere: 3
Piano: 1°
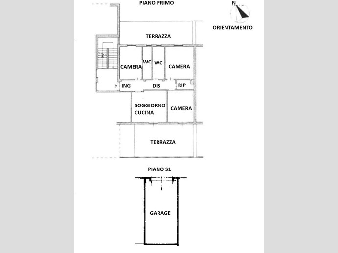
Rif. P789 - Poggibonsi - Adiacente largo Campidoglio - Ampio appartamento al piano primo con ascensore di circa 114 mq. Internamente è composto da ingresso disimpegno, cucina soggiorno, tre camere da letto, due bagni, ripostiglio oltre doppio terrazzo a livello di circa 60 mq e garage. Ottime condizioni interne. Tutti i servizi a portata di mano. Ape G - Ipe 331,4 kWh/m*anno - ? 225.000 Vuoi acquistare o vendere casa? chiamaci allo 0577 070288. Visita il nostro sito Toscanaestates.it

Condizioni economiche

Contratto: Vendita
Prezzo: 225'000€
Arredato: No
Libero: Si

Informazioni principali

Tipologia: Appartamento
Città: Poggibonsi
Superficie: 114 m²
N° locali: 6
N° bagni: 2
N° Camere: 3
Piano:
Box: Si
Cucina: Abitabile

Efficenza energetica

Classe energetica: 2015-G
Ipe: 331.40 kwm2
Anno di costruzione: 1968
Riscaldamento: autonomo

Dati inserzione

ID Offrocasa.com: 10952220
Data inserimento: 10/01/2026
Rif. Agenzia: Cod. rif 3285599VRG
Rif. Agenzia Cod. rif 3285599VRG

Gabetti

via Senese 87 - Poggibonsi (Siena)
0577/070288
Richiedi Info dal form:
Accetto l'Informativa Privacy


Condividi

Gabetti

via Senese 87 - Poggibonsi (Siena)

Appartamento in Vendita a Poggibonsi, 225'000€, 114 m², con Box

Chiama
Contatta